KAPCSOLATFELVÉTEL
Ingatlan jellege
ikerház
Belső terület
137 m²
Telek terület
700 m²
Tájolás
dél, kelet, nyugat
Építési állapot
új
Építési mód
tégla
Szobák száma
5 szoba
Terasz
20 m²
Épület szintje
földszintes.
Épült
2025
Ingatlan állapot
kívül: új
belül: új
Szigetelés
15 cm
Ablak szerkezete
3 rétegű thermoplan
Fűtés
napelem
Komfort
összkomfort
Parkolás
van fedetlen felszíni beálló
Közműállapot
csatorna: bekötve
gáz: bekötve
villany: bekötve
víz: bekötve
Energetika
nincs megadva
Fejér megye, Gárdony, (Agárd), Rákóczi Ferenc utca
Irányár
(1.04 M Ft/㎡)
Szobák
Terület
Telek terület
✅A 2025 őszén elkezdődött építkezésnek köszönhetően, két magas minőségű földszintes ház épül a Velencei tónál, csendes mellékutcában egy 1290 m²-es telken. A házak jogilag rendezettek, ügyvéd által ellenjegyzett használati megosztás szerződéssel de igény esetén a társasházi alapítás is megoldható. Amit a tulajdonosok szeretnének.
✅Várható átadás: 2026 nyár
Az építkezés által 2 önálló lakóegység kerül kivitelezésre, modern megoldásokkal és kulcsrakész átadással.
✅A telek első, utcafronti részén épülő lakás mérete: 116 m² + terasz
Nappali + 4 hálószoba
Saját kb. 700 m²-es telekrész
Autóval a telek jobb oldalán lehetséges autóval laparkolni.
Ez a ház a telek első részén elhelyzkedve egy nagyobb kertet biztosít a lakóknak.
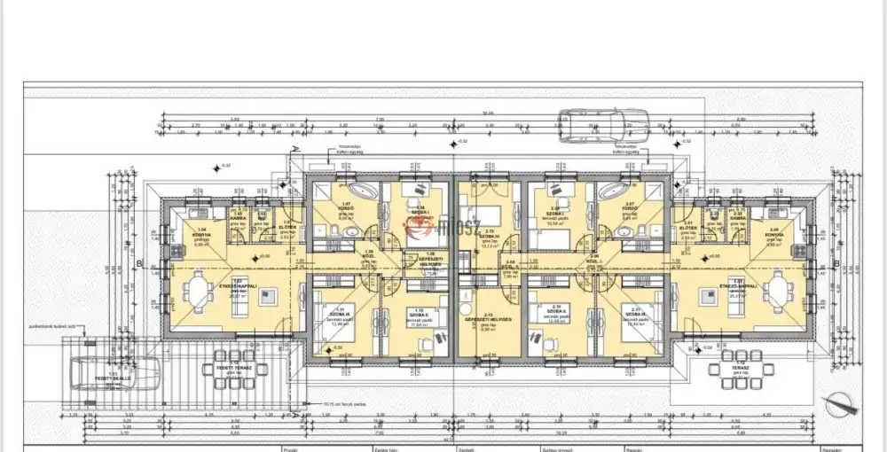
✅Részei:
1 Előtér 2,83 m2
2 WC 1,70 m2
3 Étkező-nappali 25,27 m2
4 Konyha 6,89 m2
5 Kamra 1,70 m2
6 Közlekedő I. 8,72 m2
7 Fürdő 8,64 m2
8 10,56 m2
9 Közlekedő II. 1,90 m2
10 Szoba II. 12,48 m2
11 Szoba III. 12,48 m2
12 Szoba IV. 13,13 m2
13 Gépészeti helyiség 9,90 m2
14 Terasz 20,71 m2
✅A telek első részében lévő lakóegység összesen: 116,20 m2 + terasz: 136,91 m2
✅Irányár: 142 millió Ft
✅A telek hátsó részén épülő lakás mérete: nettó 91 m² + terasz: 20,71nm + fedett kocsibeálló: 12 nm
Összesen bruttó: 122,95 m2
✅Irányár: 122 millió Ft
✅Műszaki információk:
Az átadás kulcsrakész állapotban, bútorozás nélkül történik.
A látványterven szereplő füvesítés és kertrendezés nem tartozik az árba – az ingatlan tereprendezve kerül átadásra.
A homlokzati falak 30 cm vastag Porotherm falazóelemből készülnek + 15 cm hőszigetelés. A lakáselválasztó falak légréssel illetve hangszigeteléssel épülnek meg.
Külső nyílászárók: A homlokzati nyílásokban hőszigetelt műanyag nyílászárók kerülnek elhelyezésre (REHAU Geneo PHZ), 3 rétegű hőszigetelt üvegezéssel (Ug=0,6 W/m2K, v=4-16-4-16-4 mm).
Belső nyílászárók: felületkezelt fa beltéri ajtók kerülnek elhelyezésre (OPTIMA Forma).
A tetőszerkezetre barna színű betoncserép tetőfedés kerül
A burkolás: kerámialap és laminált burkolat a vevő választása szerinti színben.
A földszinti előtér, közlekedő, fürdőkben a padlón kő burkolat, szobák és a nappali meleg padóburkolatot kaptak.
A fűtés napelemekkel működtetett, elektromos radiátorokkal és padlófűtéssel kialakítva.
✅Környezet: A velencei-tó közelsége, nyugodt környezet ad a mindennapokra is.
Gárdony – élhető város a Velencei-tónál, mégis Budapest közelében!
Gárdony a Velencei-tó partján elhelyezkedő, folyamatosan fejlődő település, ahol minden adott a kényelmes mindennapokhoz és az aktív élethez. A városban megtalálhatók nagyobb és kisebb bevásárlási lehetőségek, orvosi rendelők, gyógyszertárak, posta, valamint számos szolgáltató. A sportkedvelőknek a tó körüli kerékpárút, vízi sportok, uszoda és sportpályák biztosítanak változatos kikapcsolódást. A városban több étterem és kávézó várja a helyieket és a turistákat egyaránt. Közlekedése kiváló: autóval és vasúton is könnyen elérhető Budapest, valamint Székesfehérvár. A tó közelsége pedig nemcsak a szabadidős programokat teszi különlegessé, hanem a lakókörnyezet hangulatát is egyedivé varázsolja.
Ideális otthon családoknak és hosszú távú befektetésnek, hiszen a nm árak az elmúlt években folyamatosan növekednek!
✅Hívását bizalommal fogadom!
További információ és dokumentáció Irodánkban vagy az ingatlan bemutatásakor megtekinthető.
Ingyenes hitelügyintézés 22 banknál. Energetikai tanúsítvány 48 órán belül.
Azoknak a kedves vevőknek akik Irodánktól vásárolnak, kedvezményes ügyvédi díjat biztosítunk.
100.000 Ft KEDVEZMÉNY! (20.000.000 Ft feletti vásárlás esetén, az Irodánk partner ügyvédeinél)
Tekintse meg további ingatlanjainkat.
belül: új
gáz: bekötve
villany: bekötve
víz: bekötve
Fejér megye, Gárdony, Rákóczi Ferenc utca
Hitelkalkulátor

+36 20 444 4988,
kallai.balogh.regina@gmail.com
KAPCSOLATFELVÉTEL
Ingatlan jellege
ikerház
Belső terület
137 m²
Telek terület
700 m²
Tájolás
dél, kelet, nyugat
Építési állapot
új
Építési mód
tégla
Szobák száma
5 szoba
Terasz
20 m²
Épület szintje
földszintes.
Épült
2025
Ingatlan állapot
kívül: új
belül: új
Szigetelés
15 cm
Ablak szerkezete
3 rétegű thermoplan
Fűtés
napelem
Komfort
összkomfort
Parkolás
van fedetlen felszíni beálló
Közműállapot
csatorna: bekötve
gáz: bekötve
villany: bekötve
víz: bekötve
Energetika
nincs megadva