Eladó új építésű ház - Iszkaszentgyörgy

KAPCSOLAT
Németh Zoltán


+36 20 558

nemeth.zoltan@

Az időpont kérés naptár ikonja
IDŐPONTOT KÉREK
A visszahívás kérés telefon ikonja egy azt körbe ölelő nyíllal
VISSZAHÍVÁST KÉREK
Ajánlom egy ismerősömnek ikon
AJÁNLOM EGY ISMERŐSÖMNEK
Facebook megosztás ikon
MEGOSZTÁS

KAPCSOLATFELVÉTEL

Küldés

Az üzenetet sikeresen elküldtük!
Hiba történt!
INGATLAN ADATAI

Ingatlan jellege

családi ház

Belső terület

68 m²

Telek terület

1000 m²

Tájolás

nyugat

Építési állapot

új

Építési mód

könnyűszerkezetes

Szobák száma

1+1 félszoba

Szobák elhelyezkedése

külön nyílik min. 2 szoba

Terasz

31.5 m²

Épület szintje

1.

Épült

2026

Ingatlan állapot

kívül: új
belül: új

Klíma

van

Szigetelés

15 cm

Fűtés

padlófűtés

Komfort

összkomfort

Parkolás

van, nem meghatározott

Közműállapot

csatorna: bekötve
gáz: bekötve
villany: bekötve
víz: bekötve

Energetika

nincs megadva

Az időpont kérés naptár ikonja
HTML
Az időpont kérés naptár ikonja
PDF
Eladó új építésű ház
Ingatlan azonosító:
207_rd

Fejér megye, Iszkaszentgyörgy, Iszkai utca

Irányár

62.9 M Ft
(925 E Ft/㎡)

Szobák

1+1 félszoba

Terület

68 m²

Telek terület

1000 m²
INGATLAN LEÍRÁSA
ISZKASZENTGYÖRGY, ÚJ ÉPÍTÉSŰ, BRUTTÓ 68,25 nm-ES HÁZ 1000 nm-ES TELKEN, 2 SZOBA + NAPPALI–KONYHA–ÉTKEZŐ elrendezésű

ÁTADÁS: 2026 DECEMBER

I.ár: 62.9 M Ft

Fontos: A képek referencia házról készültek. A meghirdetett ingatlan építés alatt van, várható átadás: 2026 december

FŐ PARAMÉTEREK
Új építésű családi ház Iszkaszentgyörgyön
Bruttó beépítés: 68,25 nm
Összes nettó alapterület (belső): 56,18 nm
Terasz: 31,50 nm
Épület nettó össz alapterület: 87,68 nm
Telek: 1000 nm
Elrendezés: 2 szoba + tágas nappali–konyha–étkező egyben

Könnyűszerkezetes technológia, jó energetikai adottságokkal

A HÁZRÓL
Az ingatlan tervezésekor a cél az volt, hogy egy kompakt, mégis tágas, élhető otthon szülessen, ahol a térkihasználás és a mindennapi kényelem egyszerre érvényesül. Ennek megfelelően a ház központja egy nagy, egybenyitott nappali–konyha–étkező tér, amely természetes közösségi pontja lehet a hétköznapoknak és a vendégfogadásnak is.
A fürdőszoba kényelmes méretű, a WC külön helyiségben található, kézmosó csappal.

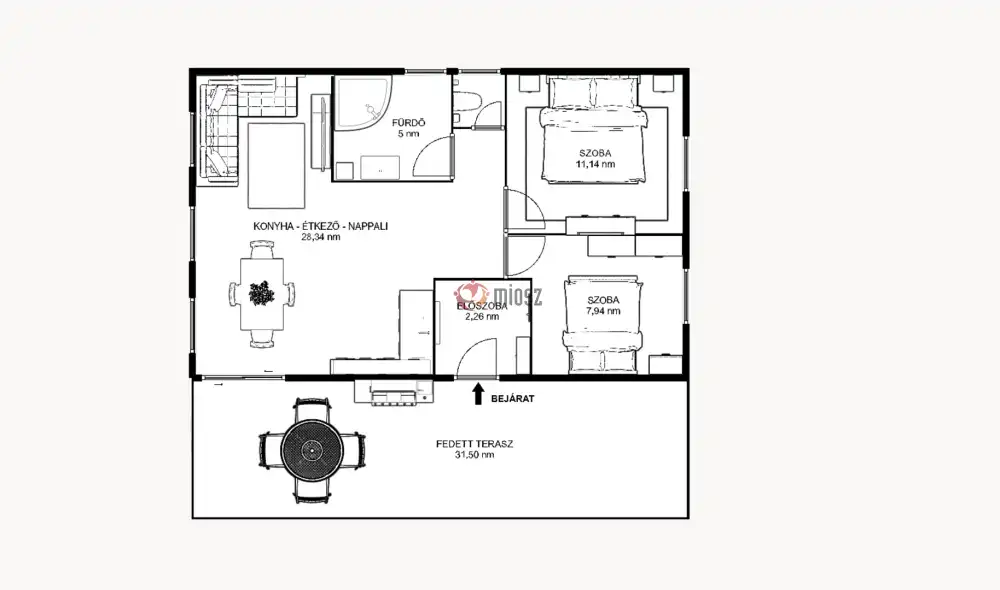
Nettó méretek részletesen:
Előtér / szélfogó: 2,26 nm
Nappali–konyha–étkező: 28,34 nm
Szoba 1: 11,14 nm
Szoba 2: 7,94 nm
Fürdőszoba: 5,00 nm
WC: 1,5 nm
Összes nettó (belső): 56,18 nm
Terasz: 31,50 nm
Épület nettó össz alapterület: 87,68 nm
Bruttó beépítés: 68,25 nm

MŰSZAKI TARTALOM
Padlófűtés
Hőszivattyús split klíma beépítéssel
3 rétegű üvegezésű nyílászárók
Magas minőségű burkolatok és szaniterek (egyedi igény szerint, áregyeztetéssel választható/cserélhető)

TELEK, KERÍTÉS
A 1000 nm-es telek 3 oldalról beton oszlopos, drótkerítéses körbekerítést kap. A telek mérete kiváló: élhető kert, tér a pihenéshez, kerti programokhoz, ugyanakkor nem válik nehezen fenntarthatóvá.

ELHELYEZKEDÉS
Iszkaszentgyörgy kedvelt részén, egy újonnan kialakított lakóterületen épül összesen 8 db ház telekkel. Ez a meghirdetett otthon a 4. ház a fejlesztésben. A friss parcellázásnak köszönhetően egységes, modern lakóközösség alakul, rendezett utcaképpel és új szomszédsággal.

KINEK AJÁNLOM?
Pároknak vagy 1 gyermekes családoknak, akik új építésű, modern otthont keresnek
Azoknak, akik értékelik a város közelségét, de fontos számukra a nyugalom és a saját kert: Székesfehérvár kb. 15 perc, mégis egy csendes, zöldebb környezetben élhetnek
Olyan vevőknek is jó választás lehet, akik egy könnyen fenntartható, mégis kényelmes otthont keresnek

Amennyiben kérdése van, vagy szeretné a műszaki tartalmat, alaprajzot és az építési ütemezést átbeszélni, keressen bizalommal!

Fontos: A fényképek referencia házról készültek, a meghirdetett ingatlan építés alatt van. Várható átadás: 2026 DECEMBER

I.ár: 62.9 M Ft

INGATLAN ADATAI

Ingatlan jellege
családi ház
Belső terület
68 m²
Telek terület
1000 m²
Tájolás
nyugat
Építési állapot
új
Építési mód
könnyűszerkezetes
Szobák száma
1+1 félszoba
Szobák elhelyezkedése
külön nyílik min. 2 szoba
Terasz
31.5 m²
Épület szintje
1.
Épült
2026
Ingatlan állapot
kívül: új
belül: új
Klíma
van
Szigetelés
15 cm
Fűtés
padlófűtés
Komfort
összkomfort
Parkolás
van, nem meghatározott
Közműállapot
csatorna: bekötve
gáz: bekötve
villany: bekötve
víz: bekötve
Energetika
nincs megadva
TÉRKÉP

Fejér megye, Iszkaszentgyörgy, Iszkai utca

Hitelkalkulátor


KAPCSOLAT
Németh Zoltán
Németh Zoltán


+36 20 558 8805

nemeth.zoltan@redingatlan.hu

KAPCSOLAT
Németh Zoltán

+36 20 558

nemeth.zoltan@

Az időpont kérés naptár ikonja
IDŐPONTOT KÉREK
A visszahívás kérés telefon ikonja egy azt körbe ölelő nyíllal
VISSZAHÍVÁST KÉREK
Ajánlom egy ismerősömnek ikon
AJÁNLOM EGY ISMERŐSÖMNEK
Facebook megosztás ikon
MEGOSZTÁS

KAPCSOLATFELVÉTEL

Küldés

Az üzenetet sikeresen elküldtük!
Hiba történt!
INGATLAN ADATAI

Ingatlan jellege

családi ház

Belső terület

68 m²

Telek terület

1000 m²

Tájolás

nyugat

Építési állapot

új

Építési mód

könnyűszerkezetes

Szobák száma

1+1 félszoba

Szobák elhelyezkedése

külön nyílik min. 2 szoba

Terasz

31.5 m²

Épület szintje

1.

Épült

2026

Ingatlan állapot

kívül: új
belül: új

Klíma

van

Szigetelés

15 cm

Fűtés

padlófűtés

Komfort

összkomfort

Parkolás

van, nem meghatározott

Közműállapot

csatorna: bekötve
gáz: bekötve
villany: bekötve
víz: bekötve

Energetika

nincs megadva

Az időpont kérés naptár ikonja
HTML
Az időpont kérés naptár ikonja
PDF

Hasonló ingatlan hírdetések

Eladó új építésű családi ház, vagy kertes ház hirdetést keres Iszkaszentgyörgy területén?
Tekintse meg további ajánlatainkat!

eladó új építésű ikerház, Iszkaszentgyörgy

eladó új építésű ikerház

Fejér megye, Iszkaszentgyörgy, Szabadság utca
ISZKASZENTGYÖRGYÖN – ÚJ ÉPÍTÉSŰ, KÉTSZINTES, 150 nm-ES, 4 HÁLÓSZOBÁS IKERHÁZFÉL ELADÓ, TERASSZAL, GARÁZZSAL, 586 nm-ES TELEKKEL! Irányár: 104.9 M Ft Tel.: 06-20-252-062...
Belső terület
150 m²
Telek terület
580 m²
Szobák
5

104.9 M Ft

Új építésű!
Új építésű
eladó új építésű családi ház, Iszkaszentgyörgy

eladó új építésű családi ház

Fejér megye, Iszkaszentgyörgy, Petőfi Sándor utca
ISZKASZENTGYÖRGYÖN, FESTŐI KÖRNYEZETBEN, 507 NM-ES TELKEN, 22 NM-ES TERASSZAL, NETTÓ 71 NM-ES, 2 HÁLÓSZOBÁS, KÖNNYŰSZERKEZETES CSALÁDI HÁZ ELADÓ! Ár: 64,99 M Ft. ...
Belső terület
71 m²
Telek terület
500 m²
Szobák
3

64.99 M Ft

Új építésű!
Új építésű
eladó ikerház, Iszkaszentgyörgy

eladó ikerház

Fejér megye, Iszkaszentgyörgy
ISZKASZENTGYÖRGY CSENDES RÉSZÉN – ÚJ ÉPÍTÉSŰ, HŐSZIVATTYÚS, PADLÓFŰTÉSES IKERHÁZFÉL ELADÓ! Telek mérete: 480 nm Lakótér (bruttó): 113 m² + 8,4 m² tároló Szobák száma: 3 + amerikai konyhás nappali...
Belső terület
113 m²
Telek terület
480 m²
Szobák
4

79.9 M Ft

Új építésű!
Új építésű
eladó ikerház, Iszkaszentgyörgy

eladó ikerház

Fejér megye, Iszkaszentgyörgy
ISZKASZENTGYÖRGY LEGBÉKÉSEBB RÉSZÉN, ÚJ ÉPÍTÉSŰ, HŐSZIVATTYÚS, PADLÓFŰTÉSES IKERHÁZ FÉL, 113 NM LAKÓTÉR, 3 KÜLÖN NYÍLÓ SZOBA, AMERIKAI KONYHA-NAPPALI, 628 NM SAJÁT TELEKKEL, ELADÓ! Ár: 81,9 M Ft ...
Belső terület
113 m²
Telek terület
628 m²
Szobák
4

81.9 M Ft

eladó új építésű családi ház, Iszkaszentgyörgy

eladó új építésű családi ház

Fejér megye, Iszkaszentgyörgy, Petőfi Sándor utca
ISZKASZENTGYÖRGY LEGBÉKÉSEBB RÉSZÉN, ÚJ ÉPÍTÉSŰ, HŐSZIVATTYÚS, PADLÓFŰTÉSES IKERHÁZ FÉL, BRUTTÓ 116 NM, 3 KÜLÖN NYÍLÓ SZOBA, AMERIKAI KONYHA-NAPPALI, 628 NM SAJÁT TELEKKEL, ELADÓ! Ár: 81,9 M Ft ...
Belső terület
104 m²
Telek terület
1100 m²
Szobák
5

95 M Ft

eladó új építésű családi ház, Iszkaszentgyörgy

eladó új építésű családi ház

Fejér megye, Iszkaszentgyörgy, Kisiszka hegyi út
Eladó új építésű családi ház Iszkaszentgyörgy csendes részén! Iszkaszentgyörgy település Kisiszkahegyi részén, nyugodt, természetközeli környezetben kínálunk megvételre egy kiváló adottságokkal ren...
Belső terület
130 m²
Telek terület
1200 m²
Szobák
4

99 M Ft

Fejér megye - Iszkaszentgyörgy
Fejér megye - Iszkaszentgyörgy
Fejér megye - Iszkaszentgyörgy
Fejér megye - Iszkaszentgyörgy
Fejér megye - Iszkaszentgyörgy
Fejér megye - Iszkaszentgyörgy
Fejér megye - Iszkaszentgyörgy
Fejér megye - Iszkaszentgyörgy
Fejér megye - Iszkaszentgyörgy
Fejér megye - Iszkaszentgyörgy