Eladó új építésű ikerház - Erdőkertes

Új építésű!
Új építésű
KAPCSOLAT
Kiss Jutka


+36 20 334

arenaingatlanok@

Az időpont kérés naptár ikonja
IDŐPONTOT KÉREK
A visszahívás kérés telefon ikonja egy azt körbe ölelő nyíllal
VISSZAHÍVÁST KÉREK
Ajánlom egy ismerősömnek ikon
AJÁNLOM EGY ISMERŐSÖMNEK
Facebook megosztás ikon
MEGOSZTÁS

KAPCSOLATFELVÉTEL

Küldés

Az üzenetet sikeresen elküldtük!
Hiba történt!
INGATLAN ADATAI

Ingatlan jellege

ikerház

Belső terület

119 m²

Telek terület

881 m²

Tájolás

délkelet

Építési állapot

új

Építési mód

tégla

Szobák száma

5 szoba

Terasz

15 m²

Épület szintje

1.

Épült

2026

Ingatlan állapot

kívül: új
belül: új

Klíma

van

Szigetelés

15 cm

Ablak szerkezete

3 rétegű thermoplan

Fűtés

gázkazán

Komfort

duplakomfort

Parkolás

van fedett felszíni beálló

Közműállapot

csatorna: bekötve
gáz: bekötve
villany: bekötve
víz: bekötve

Energetika

nincs megadva

Az időpont kérés naptár ikonja
HTML
Az időpont kérés naptár ikonja
PDF
Eladó új építésű ikerház
Ingatlan azonosító:
1371_ar

Pest megye, Erdőkertes, Háromház

Irányár

92.9 M Ft
(780.67 E Ft/㎡)

Szobák

5 szoba

Terület

119 m²

Telek terület

881 m²
INGATLAN LEÍRÁSA
Eladó Erdőkertesen ÚJ ÉPÍTÉSŰ családi ház!

BERUHÁZÓI ÁRON!

Kiváló lehetőség Erdőkertesen: új építésű, amerikai konyhás nappali + 4 szobás, dupla komfortos családi ház várja új lakóit.

Az előszobából nyílik az amerikai konyhás nappali, amely közvetlenül kapcsolódik a teraszhoz. Négy kényelmes hálószoba—mindegyik külön nyíló—teremti meg a család személyes tereit. Két fürdőszoba, háztartási helyiség, kamra és tároló gondoskodik a mindennapok praktikumáról.

A 881 m²-es telek önállóságot és szabad teret kínál, az egyszintes ház minden korosztály számára ideális választás.

A BELSŐ TEREK KIALAKÍTÁSA – válaszfalak elhelyezése – JELENLEG MÉG MÓDOSÍTHATÓ!

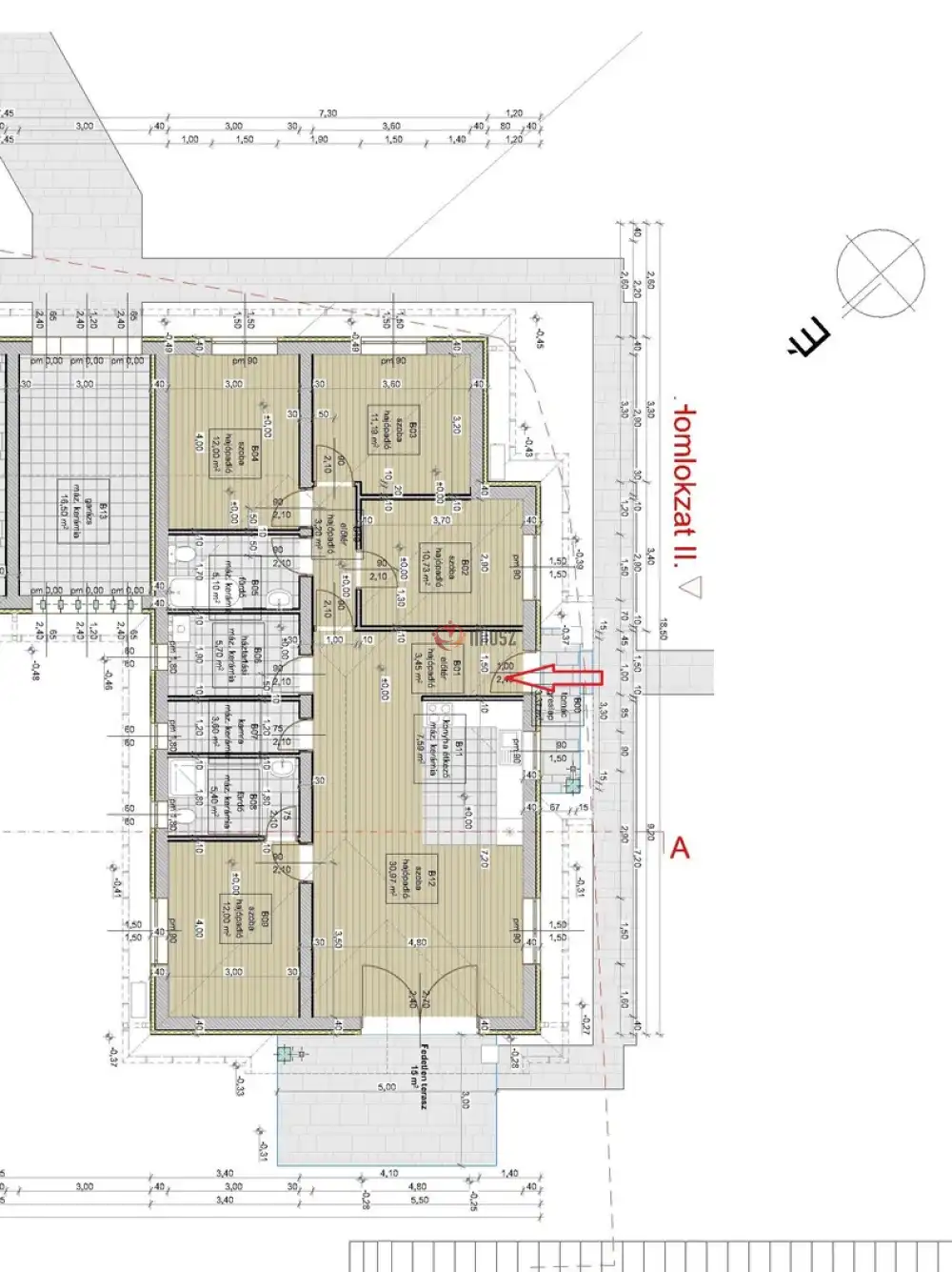
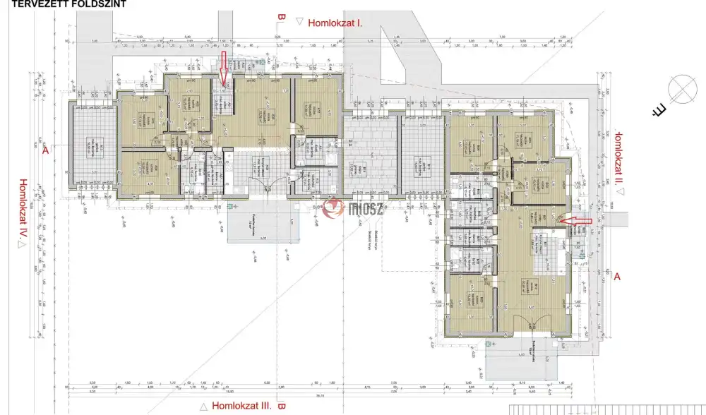
Az 1762 nm-es telekre két ház épül, melyek csak a gépkocsi beállóknál érintkeznek, nincs közös fal, önálló házként funkcionálnak.

„A” lakás:
- nettó 110 nm + 15 nm terasz + 3.4 nm tornác + 15 nm terasz + 16.5 nm garázs,
- amerikai konyhás nappali terasz kapcsolattal, 4 szoba, 2 fürdőszoba, háztartási helyiség, kamra, előszoba-közlekedő helyiségekből áll.

„B” lakás elrendezése:
- nettó 111 nm + 15 nm terasz + 3.4 nm tornác + 16.5 nm garázs + 23.6 nm gk. beálló,
- amerikai konyhás nappali, 4 hálószoba, 2 fürdőszoba, háztartási helyiség, kamra, előszoba-közlekedő.

Az ingatlan korszerű technikai megoldásokat kínál:
- főfalak 30 cm-es Porotherm téglából, 15 cm-es szigeteléssel,
- a tető beton cserépfedés,
- fűtés kondenzációs kazánnal, padlófűtéssel, értékegyeztetéssel hőszivattyús fűtéssel,
-2 db klíma,
- 3 rétegű, hőszigetelt üvegezésű műanyag nyílászárók, bukó-nyíló kivitelben, igény esetén redőnnyel, szúnyoghálóval felszerelve,
-a szobák burkolata laminált padló, a vizes helyiségekbe kerámia burkolatok kerülnek,
- választható burkolatok, szaniterek, belső ajtók.

A kivitelező számos referencia munkával rendelkezik.

Közlekedés: buszmegálló gyalogosan pár perc alatt elérhető.

Hívjon a részletekért, a részletes műszaki tartalomért.

Irodánk ÚJ ÉPÍTÉSŰ ingatlanok specialistája, felkészült értékesítőkkel!
Jogi háttérrel (kedvező díjazással) és az egyik legjobb, bank semleges HITELKÖZVETÍTŐVEL segítjük vásárlását.

Új építésű ingatlanjainkat BERUHÁZÓI ÁRON értékesítjük!

Amennyiben értékesíteni kívánja ingatlanát, irodánk egyedi, kedvező ajánlattal áll rendelkezésére!


INGATLAN ADATAI

Ingatlan jellege
ikerház
Belső terület
119 m²
Telek terület
881 m²
Tájolás
délkelet
Építési állapot
új
Építési mód
tégla
Szobák száma
5 szoba
Terasz
15 m²
Épület szintje
1.
Épült
2026
Ingatlan állapot
kívül: új
belül: új
Klíma
van
Szigetelés
15 cm
Ablak szerkezete
3 rétegű thermoplan
Fűtés
gázkazán
Komfort
duplakomfort
Parkolás
van fedett felszíni beálló
Közműállapot
csatorna: bekötve
gáz: bekötve
villany: bekötve
víz: bekötve
Energetika
nincs megadva
TÉRKÉP

Pest megye, Erdőkertes, Háromház

Hitelkalkulátor


KAPCSOLAT
Kiss Jutka
Kiss Jutka


+36 20 334 3328

arenaingatlanok@gmail.com

KAPCSOLAT
Kiss Jutka

+36 20 334

arenaingatlanok@

Az időpont kérés naptár ikonja
IDŐPONTOT KÉREK
A visszahívás kérés telefon ikonja egy azt körbe ölelő nyíllal
VISSZAHÍVÁST KÉREK
Ajánlom egy ismerősömnek ikon
AJÁNLOM EGY ISMERŐSÖMNEK
Facebook megosztás ikon
MEGOSZTÁS

KAPCSOLATFELVÉTEL

Küldés

Az üzenetet sikeresen elküldtük!
Hiba történt!
INGATLAN ADATAI

Ingatlan jellege

ikerház

Belső terület

119 m²

Telek terület

881 m²

Tájolás

délkelet

Építési állapot

új

Építési mód

tégla

Szobák száma

5 szoba

Terasz

15 m²

Épület szintje

1.

Épült

2026

Ingatlan állapot

kívül: új
belül: új

Klíma

van

Szigetelés

15 cm

Ablak szerkezete

3 rétegű thermoplan

Fűtés

gázkazán

Komfort

duplakomfort

Parkolás

van fedett felszíni beálló

Közműállapot

csatorna: bekötve
gáz: bekötve
villany: bekötve
víz: bekötve

Energetika

nincs megadva

Az időpont kérés naptár ikonja
HTML
Az időpont kérés naptár ikonja
PDF

Hasonló ingatlan hírdetések

Eladó új építésű családi ház, vagy kertes ház hirdetést keres Erdőkertes területén?
Tekintse meg további ajánlatainkat!

eladó új építésű családi ház, Erdőkertes

eladó új építésű családi ház

Pest megye, Erdőkertes, Topolyos
ERDŐKERTES CSENDES RÉSZÉN, 740 NM-ES TELEKRE ÉPÜLŐ, EGYSZINTES, BRUTTÓ 170, NETTÓ 114 NM-ES, NAPPALI + 4 SZOBÁS, DUPLA KOMFORTOS, 18 NM-ES FEDETT TERASSZAL, FELSZÍNI GÉPKOCSI BEÁLLÓVAL RENDELKEZŐ, DÉL...
Belső terület
114 m²
Telek terület
740 m²
Szobák
5

104.9 M Ft

eladó új építésű családi ház, Erdőkertes

eladó új építésű családi ház

Pest megye, Erdőkertes, Központ
*** KÖZPONTHOZ KÖZELI, ASZFALTOS UTCÁBAN *** Erdőkertes központhoz közeli részén, aszfaltos utcában, 1000 nm-es telekre épülő, egyszintes, nettó 113 nm-es, nappali + 4 szobás, dupla komfortos, 15 n...
Belső terület
113 m²
Telek terület
1000 m²
Szobák
5

114.9 M Ft

Új építésű!
Új építésű
eladó új építésű családi ház, Erdőkertes

eladó új építésű családi ház

Pest megye, Erdőkertes, Gézahegy
ERDŐKERTES CSALÁDI HÁZAS RÉSZÉN, 800 NM-ES SAROKTELEKRE ÉPÜLŐ, EGYSZINTES, NETTÓ 110 NM-ES, NAPPALI + 4 SZOBÁS, DUPLA KOMFORTOS, HŐSZIVATTYÚS, 30 NM-ES TERASSZAL, GÉPKOCSI BEÁLLÓVAL RENDELKEZŐ, DÉLNYU...
Belső terület
111 m²
Telek terület
800 m²
Szobák
5

104.9 M Ft

Új építésű!
Új építésű
eladó új építésű családi ház, Erdőkertes

eladó új építésű családi ház

Pest megye, Erdőkertes
Modern családi otthon prémium kivitelezéssel! Erdőkertes egyik legkedveltebb, csendes részén kínálunk egy 108 m²-es, modern, A++ energetikájú családi otthont, ahol a tágas terek és a letisztult des...
Belső terület
108 m²
Telek terület
826 m²
Szobák
4

99.9 M Ft

eladó új építésű családi ház, Erdőkertes

eladó új építésű családi ház

Pest megye, Erdőkertes, Topolyos
Eladó ÚJ ÉPÍTÉSŰ, ENERGIATAKARÉKOS családi ház Erdőkertesen! BERUHÁZÓI ÁRON! Eladó Erdőkertesen csendes, aszfaltos utcában, 816 nm-es telken épülő, nettó 110 nm-es, amerikai konyhás nappali + 4 ...
Belső terület
121 m²
Telek terület
816 m²
Szobák
5

104.9 M Ft

Új építésű!
Új építésű
eladó új építésű családi ház, Erdőkertes

eladó új építésű családi ház

Pest megye, Erdőkertes, Kilencholdas
Eladó ÚJ ÉPÍTÉSŰ családi ház Erdőkertesen! BERUHÁZÓI ÁRON! HAMAROSAN KEZDŐDŐ ÉPÍTKEZÉS! A BELSŐ TEREK KIALAKÍTÁSA – válaszfalak elhelyezése – JELENLEG MÉG MÓDOSÍTHATÓ! Igény esetén – érték...
Belső terület
125 m²
Telek terület
775 m²
Szobák
5

99.9 M Ft

Új építésű!
Új építésű
eladó új építésű családi ház, Erdőkertes

eladó új építésű családi ház

Pest megye, Erdőkertes, Topolyos
Eladó Erdőkertes kedvelt, családi házas részén, aszfaltos utcában lévő, 816 nm-es saroktelekre épülő, egyszintes, nettó 110 nm-es, nappali + 4 szobás, dupla komfortos, gardróbos, FEDETT terasszal rend...
Belső terület
110 m²
Telek terület
816 m²
Szobák
5

99.9 M Ft

eladó új építésű családi ház, Erdőkertes

eladó új építésű családi ház

Pest megye, Erdőkertes, Kilencholdas
Eladó Erdőkertes kedvelt, családi házas részén, 775 nm-es telekre épülő, egyszintes, bruttó 160, nettó 114 nm-es, nappali + 4 szobás, 16 nm-es terasszal rendelkező önálló családi ház! Beruházó refe...
Belső terület
114 m²
Telek terület
775 m²
Szobák
5

99.9 M Ft

Pest megye - Erdőkertes
Pest megye - Erdőkertes
Pest megye - Erdőkertes
Pest megye - Erdőkertes
Pest megye - Erdőkertes