Eladó új építésű ház - Erdőkertes

Új építésű!
Új építésű
KAPCSOLAT
Turzó Bettina


+36 30 924

turzobettina@

Az időpont kérés naptár ikonja
IDŐPONTOT KÉREK
A visszahívás kérés telefon ikonja egy azt körbe ölelő nyíllal
VISSZAHÍVÁST KÉREK
Ajánlom egy ismerősömnek ikon
AJÁNLOM EGY ISMERŐSÖMNEK
Facebook megosztás ikon
MEGOSZTÁS

KAPCSOLATFELVÉTEL

Küldés

Az üzenetet sikeresen elküldtük!
Hiba történt!
INGATLAN ADATAI

Ingatlan jellege

családi ház

Belső terület

113 m²

Telek terület

1000 m²

Tájolás

délkelet

Építési állapot

új

Építési mód

tégla

Szobák száma

5 szoba

Terasz

15 m²

Épület szintje

1.

Épült

2026

Ingatlan állapot

kívül: kitűnő
belül: kitűnő

Szigetelés

15 cm

Ablak szerkezete

3 rétegű thermoplan

Fűtés

hőszivattyús

Komfort

duplakomfort

Parkolás

van fedetlen felszíni beálló

Közműállapot

csatorna: bekötve
gáz: bekötve
villany: bekötve
víz: bekötve

Energetika

nincs megadva

Az időpont kérés naptár ikonja
HTML
Az időpont kérés naptár ikonja
PDF
Eladó új építésű ház
Ingatlan azonosító:
804_trb

Pest megye, Erdőkertes, Központ

Irányár

114.9 M Ft
(1.02 M Ft/㎡)

Szobák

5 szoba

Terület

113 m²

Telek terület

1000 m²
INGATLAN LEÍRÁSA
*** KÖZPONTHOZ KÖZELI, ASZFALTOS UTCÁBAN ***

Erdőkertes központhoz közeli részén, aszfaltos utcában, 1000 nm-es telekre épülő, egyszintes, nettó 113 nm-es, nappali + 4 szobás, dupla komfortos, 15 nm-es FEDETT TERASSZAL, felszíni gépkocsi beállóval rendelkező családi ház eladó.

Beruházó referencia munkái a közelben megtekinthetők!

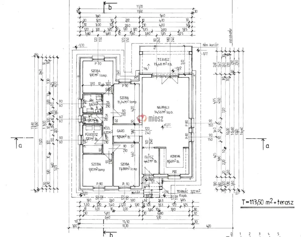
Elosztása:

fedett tornác 2,22 nm
előszoba 4,42 nm
közlekedő 6,20 nm
WC 1,90 nm
fürdő 5,70 nm
házt.h. 3,80 nm
gardrób 5,34 nm
konyha-étkező-nappali 43,12 nm
szoba 11,88 nm
szoba 11,34 nm
szoba 9,90 nm
szoba 9,90 nm
fedett terasz 15,48 nm

Műszaki leírás röviden:

*teherhordó fal PTH 30-as tégla
*belső válaszfalak 10 cm PTH
*15 cm-es homlokzati szigetelés szigetelés
*nyílászárók műanyag 3 rétegű, 5 légkamrás kivitel
*betongerendás födém
*Bramac tetőcserép
*fűtése hőszivattyú, padlófűtéssel (2 mFt-ig állja beruházó)
*utcafronti kerítés zsalukő erősített fa lécezés
*átadás 2026. III. név
*burkolatok, szaniterek, beltéri ajtók a műszaki leírásban meghatározott értékben választhatók
*jelenleg a telek tekinthető meg, fotókon ugyanilyen referencia ház is szerepel.

Hiteligény esetén az ügyintézést szakszerűen, gyorsan és DÍJMENTESEN biztosítjuk ügyfeleink számára, így a legkedvezőbb megoldást tudjuk kínálni az ingatlan megvásárlásához.

Várom megtisztelő érdeklődését, akár hétvégén is!

INGATLAN ADATAI

Ingatlan jellege
családi ház
Belső terület
113 m²
Telek terület
1000 m²
Tájolás
délkelet
Építési állapot
új
Építési mód
tégla
Szobák száma
5 szoba
Terasz
15 m²
Épület szintje
1.
Épült
2026
Ingatlan állapot
kívül: kitűnő
belül: kitűnő
Szigetelés
15 cm
Ablak szerkezete
3 rétegű thermoplan
Fűtés
hőszivattyús
Komfort
duplakomfort
Parkolás
van fedetlen felszíni beálló
Közműállapot
csatorna: bekötve
gáz: bekötve
villany: bekötve
víz: bekötve
Energetika
nincs megadva
TÉRKÉP

Pest megye, Erdőkertes, Központ

Hitelkalkulátor


KAPCSOLAT
Turzó Bettina
Turzó Bettina


+36 30 924 5445

turzobettina@gmail.com

KAPCSOLAT
Turzó Bettina

+36 30 924

turzobettina@

Az időpont kérés naptár ikonja
IDŐPONTOT KÉREK
A visszahívás kérés telefon ikonja egy azt körbe ölelő nyíllal
VISSZAHÍVÁST KÉREK
Ajánlom egy ismerősömnek ikon
AJÁNLOM EGY ISMERŐSÖMNEK
Facebook megosztás ikon
MEGOSZTÁS

KAPCSOLATFELVÉTEL

Küldés

Az üzenetet sikeresen elküldtük!
Hiba történt!
INGATLAN ADATAI

Ingatlan jellege

családi ház

Belső terület

113 m²

Telek terület

1000 m²

Tájolás

délkelet

Építési állapot

új

Építési mód

tégla

Szobák száma

5 szoba

Terasz

15 m²

Épület szintje

1.

Épült

2026

Ingatlan állapot

kívül: kitűnő
belül: kitűnő

Szigetelés

15 cm

Ablak szerkezete

3 rétegű thermoplan

Fűtés

hőszivattyús

Komfort

duplakomfort

Parkolás

van fedetlen felszíni beálló

Közműállapot

csatorna: bekötve
gáz: bekötve
villany: bekötve
víz: bekötve

Energetika

nincs megadva

Az időpont kérés naptár ikonja
HTML
Az időpont kérés naptár ikonja
PDF

Hasonló ingatlan hírdetések

Eladó új építésű családi ház, vagy kertes ház hirdetést keres Erdőkertes területén?
Tekintse meg további ajánlatainkat!

eladó új építésű családi ház, Erdőkertes

eladó új építésű családi ház

Pest megye, Erdőkertes, Topolyos
ERDŐKERTES CSENDES RÉSZÉN, 740 NM-ES TELEKRE ÉPÜLŐ, EGYSZINTES, BRUTTÓ 170, NETTÓ 114 NM-ES, NAPPALI + 4 SZOBÁS, DUPLA KOMFORTOS, 18 NM-ES FEDETT TERASSZAL, FELSZÍNI GÉPKOCSI BEÁLLÓVAL RENDELKEZŐ, DÉL...
Belső terület
114 m²
Telek terület
740 m²
Szobák
5

108.9 M Ft

eladó új építésű családi ház, Erdőkertes

eladó új építésű családi ház

Pest megye, Erdőkertes, Gézahegy
ERDŐKERTES CSALÁDI HÁZAS RÉSZÉN, 800 NM-ES SAROKTELEKRE ÉPÜLŐ, EGYSZINTES, NETTÓ 111 NM-ES, NAPPALI + 4 SZOBÁS, DUPLA KOMFORTOS, HŐSZIVATTYÚS, 13 NM-ES FEDETT TERASSZAL, GÉPKOCSI BEÁLLÓVAL RENDELKEZŐ,...
Belső terület
111 m²
Telek terület
800 m²
Szobák
5

109.9 M Ft

Új építésű!
Új építésű
eladó új építésű családi ház, Erdőkertes

eladó új építésű családi ház

Pest megye, Erdőkertes, Háromház
Eladó Erdőkertesen ÚJ ÉPÍTÉSŰ, amerikai konyhás nappali + 4 szobás, dupla komfortos családi ház garázzsal, 881 nm telekkel! BERUHÁZÓI ÁRON! Az építkezés hamarosan kezdődik, a BELSŐ TEREK KIALAKÍ...
Belső terület
119 m²
Telek terület
881 m²
Szobák
5

92.9 M Ft

Új építésű!
Új építésű
eladó új építésű családi ház, Erdőkertes

eladó új építésű családi ház

Pest megye, Erdőkertes
Modern családi otthon prémium kivitelezéssel! Erdőkertes egyik legkedveltebb, csendes részén kínálunk egy 108 m²-es, modern, A++ energetikájú családi otthont, ahol a tágas terek és a letisztult des...
Belső terület
108 m²
Telek terület
826 m²
Szobák
4

99.9 M Ft

eladó új építésű családi ház, Erdőkertes

eladó új építésű családi ház

Pest megye, Erdőkertes, Háromház
Eladó ÚJ ÉPÍTÉSŰ családi ház Erdőkertesen! BERUHÁZÓI ÁRON! Eladó Erdőkertes Háromház részén nettó 113 nm-es, amerikai konyhás nappali + 4 szobás földszintes családi ház 1100 nm-es telekkel. ...
Belső terület
126 m²
Telek terület
1100 m²
Szobák
5

94.9 M Ft

Új építésű!
Új építésű
eladó új építésű családi ház, Erdőkertes

eladó új építésű családi ház

Pest megye, Erdőkertes
Eladó ÚJ ÉPÍTÉSŰ családi ház Erdőkertesen! BERUHÁZÓI ÁRON! A földszintes, nettó 113 nm-es családi ház Erdőkertes Topolyos részén, 955 nm-es telken fog épülni. Jelenleg a telek tekinthető meg,...
Belső terület
126 m²
Telek terület
955 m²
Szobák
5

94.9 M Ft

Új építésű!
Új építésű
eladó új építésű családi ház, Erdőkertes

eladó új építésű családi ház

Pest megye, Erdőkertes, Topolyos
Eladó ÚJ ÉPÍTÉSŰ családi ház Erdőkertesen! BERUHÁZÓI ÁRON! Hívjon most és költözzön tavasszal vadonatúj otthonába! Eladó Erdőkertesen, aszfaltos utcában, 816 nm-es telken épülő, amerikai kony...
Belső terület
117 m²
Telek terület
816 m²
Szobák
5

99.9 M Ft

Új építésű!
Új építésű
eladó új építésű családi ház, Erdőkertes

eladó új építésű családi ház

Pest megye, Erdőkertes, Kilencholdas
Eladó ÚJ ÉPÍTÉSŰ családi ház Erdőkertesen! BERUHÁZÓI ÁRON! HAMAROSAN KEZDŐDŐ ÉPÍTKEZÉS! A BELSŐ TEREK KIALAKÍTÁSA – válaszfalak elhelyezése – JELENLEG MÉG MÓDOSÍTHATÓ! Igény esetén – érték...
Belső terület
125 m²
Telek terület
775 m²
Szobák
5

99.9 M Ft

Új építésű!
Új építésű
Pest megye - Erdőkertes
Pest megye - Erdőkertes
Pest megye - Erdőkertes
Pest megye - Erdőkertes
Pest megye - Erdőkertes
Pest megye - Erdőkertes