KAPCSOLATFELVÉTEL
Ingatlan jellege
családi ház
Belső terület
173 m²
Telek terület
1411 m²
Tájolás
dél, délkelet
Építési állapot
új
Építési mód
tégla
Szobák száma
5 szoba
Terasz
35 m²
Épület szintje
1.
Épült
2024
Akadálymentes
igen
Ingatlan állapot
 
										kívül: új
belül: épülő									
Komfort
duplakomfort
Közműállapot
 
								csatorna: bekötve										
								gáz: nincs										
								villany: bekötve										
								víz: bekötve										
									
Energetika
nincs megadva
Tolna megye, Györköny, Kossuth Lajos utca
Akciós ár
(274.57 E Ft/㎡)
Eredeti irányár
Szobák
Terület
Telek terület
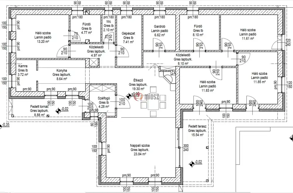
A Pakstól 17 km-re található pincefaluban 2024-ben épült 173 m2-es családi ház szerkezetkész állapotban, vagy kulcsrakész állapotban megvásárolható.
A ház, egy csendes és nyugodt zsákutca végében, fákkal övezett környezetben épült, így kiváló választás új otthonának, hétvégi háznak, de akár szálláshely-szolgáltatási céllal befektetésnek is.
A szerkezetkész állapot jelenleg az alábbi munkálatokat tartalmazza:
- a szerkezeti vasalt betonlemez sávalapokon fekszik;
- a tartófalak phorotherm 30-as téglákból készültek, amelyeket vasbeton koszorú fed;
- tető fedése cserepeslemezzel történt, de a szerkezet kialakítása megfelel a cserépfedésnek is;
- a terasz, valamint a nappali felett a vasalt betongerenda a koszorúval összekötve biztosítja a megfelelő szerkezetet;
- a villamos hálózat 3x20A, amely a telken belül megtalálható (a tervek szerint az ingatlan villamosenergia ellátását napelem, a fűtést és melegvizet pedig hőszivattyú biztosítja);
- a falak 15 cm EPS -el vannak szigetelve;
- Nyílászárók:
Profil: 70 mm vastag fehér, 5 légkamrás Fenstherm VEKA BRILL típusú műanyag nyílászárók, horganyzott acélmerevítéssel (tokban, szárnyban).
Üvegezés: háromrétegű thermo üveg.
Ablak vasalat: Roto NX (hibás működtetés gátló-, kiemelés-gátló-, huzatbiztosítóval szerelve).
Az ingatlant a tulajdonosa, saját részre minőségi anyagokkal és kipróbált profi szakemberekkel építette.
A belső válaszfalak még nem készültek el, így az új tulajdonos még igény szerint változtathat a szobák elrendezésén, vagy befejezheti az eredeti négy hálószoba plusz nappalis meglévő tervek alapján.
A hirdetési ár a jelenlegi szerkezetkész állapotban való megvásárlásra vonatkozik, de lehetőség van a kulcsrakész állapot megvásárlására is egyedi megállapodás szerint.
Otthon Start program segítségével, 3%-os kedvező hitel konstrukcióval finanszírozható!
belül: épülő
gáz: nincs
villany: bekötve
víz: bekötve
Tolna megye, Györköny, Kossuth Lajos utca
Hitelkalkulátor
 
							+36 30 517 2623
gorogzoltan@ingatlanpaks.hu
KAPCSOLATFELVÉTEL
Ingatlan jellege
családi ház
Belső terület
173 m²
Telek terület
1411 m²
Tájolás
dél, délkelet
Építési állapot
új
Építési mód
tégla
Szobák száma
5 szoba
Terasz
35 m²
Épület szintje
1.
Épült
2024
Ingatlan állapot
 
									kívül: új
belül: épülő								
Komfort
duplakomfort
Közműállapot
 
							csatorna: bekötve									
							gáz: nincs									
							villany: bekötve									
							víz: bekötve									
								
Energetika
nincs megadva
 
								 
											 
																 
																 
																 
																 
																 
																 
																 
																 
																 
																 
																 
																 
																 
																 
																 
																 
																 
																 
																 
										 
										 
										 
						
					 
						
					 
						
					 
						
					 
						
					 
						
					 
						
					 
						
					 
						
					 
						
					 
						
					 
						
					 
						
					 
						
					 
						
					 
						
					 
						
					 
						
					 
						
					