Eladó új építésű ikerház - Dunaföldvár

CSOK igényelhető
CSOK igényelhető
KAPCSOLAT
Görög Zoltán


+36 30 517

gorogzoltan@

Az időpont kérés naptár ikonja
IDŐPONTOT KÉREK
A visszahívás kérés telefon ikonja egy azt körbe ölelő nyíllal
VISSZAHÍVÁST KÉREK
Ajánlom egy ismerősömnek ikon
AJÁNLOM EGY ISMERŐSÖMNEK
Facebook megosztás ikon
MEGOSZTÁS

KAPCSOLATFELVÉTEL

Küldés

Az üzenetet sikeresen elküldtük!
Hiba történt!
INGATLAN ADATAI

Ingatlan jellege

ikerház

Belső terület

160 m²

Telek terület

580 m²

Tájolás

dél, délnyugat

Építési állapot

új

Építési mód

tégla

Szobák száma

4 szoba

Terasz

23.62 m²

Épület szintje

1.

Épült

2025

Akadálymentes

igen

Ingatlan állapot

kívül: új
belül: új

Klíma

van

Szigetelés

15 cm

Ablak szerkezete

3 rétegű thermoplan

Fűtés

hőszivattyús

Komfort

összkomfort

Közműállapot

csatorna: bekötve
gáz: utcában
villany: bekötve
víz: bekötve

Energetika

A+:

Az időpont kérés naptár ikonja
HTML
Az időpont kérés naptár ikonja
PDF
Eladó új építésű ikerház
Ingatlan azonosító:
1027_gz

Tolna megye, Dunaföldvár, Pipacs utca

Irányár

176 M Ft
(1.1 M Ft/㎡)

Szobák

4 szoba

Terület

160 m²

Telek terület

580 m²
INGATLAN LEÍRÁSA
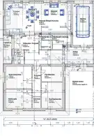
Dunaföldvár, csendes családi házas utcájában 3 hálószoba plusz amerikai konyhás új építésű családi ház ELADÓ!

A 160 m2-es ikerházban 3 hálószoba, egy tágas és világos amerikai konyhás nappali, fürdőszoba, WC, garázs és egy saját kert biztosítja a leendő lakók kényelmét.

A ház modern, a mai igényeknek megfelelő belső kialakítás szerint a legjobb építőanyagok felhasználásával és jó referenciákkal rendelkező szakemberek által kerül kivitelezésre.
Energetikai besorolás A+

- A fűtést és hűtést hőszivattyú fogja biztosítani padlófűtés és helyiségenként fan-coilok segítségével.
- Háromrétegű, hőszigetelt üveggel szerelt prémium minőségű fa nyílászárók kerülnek beépítésre.
- 15cm homlokzati hőszigetelés kerül a falakra és 30 cm kőzetgyapot födém szigetelés kerül beépítlésre.

A hirdetési ár tartalmazza:
- A látványtervek szerint elkészített külső és belső kialakítást.
- Minden ablak elektromos aluminium redőnyökkel felszerelve.
- A képeken látható prémium minőségű burkolatokkal burkolva, fehérre festett falakkal, belső ajtókkal és prémium szaniterekkel felszerelve.
- Füvesített kert kerül kialakításra.

Igény szerint az ingatlan megvásárolható a belsőépítész által tervezett egyedi bútorokkal berendezve kulcsrakészen is.

A házban jelenleg a belső tér befejező munkálatai zajlanak, így érdeklődés esetén lehetséges a személyes megtekintés.
Várható átadás: 2026.február-március.

Az ingatlan megvásárlására Otthon Start 3%-os hitelprogramban kedvezményes hitel igényelhető.

INGATLAN ADATAI

Ingatlan jellege
ikerház
Belső terület
160 m²
Telek terület
580 m²
Tájolás
dél, délnyugat
Építési állapot
új
Építési mód
tégla
Szobák száma
4 szoba
Terasz
23.62 m²
Épület szintje
1.
Épült
2025
Akadálymentes
igen
Ingatlan állapot
kívül: új
belül: új
Klíma
van
Szigetelés
15 cm
Ablak szerkezete
3 rétegű thermoplan
Fűtés
hőszivattyús
Komfort
összkomfort
Közműállapot
csatorna: bekötve
gáz: utcában
villany: bekötve
víz: bekötve
Energetika
A+:
TÉRKÉP

Tolna megye, Dunaföldvár, Pipacs utca

Hitelkalkulátor


KAPCSOLAT
Görög Zoltán
Görög Zoltán


+36 30 517 2623

gorogzoltan@ingatlanpaks.hu

KAPCSOLAT
Görög Zoltán

+36 30 517

gorogzoltan@

Az időpont kérés naptár ikonja
IDŐPONTOT KÉREK
A visszahívás kérés telefon ikonja egy azt körbe ölelő nyíllal
VISSZAHÍVÁST KÉREK
Ajánlom egy ismerősömnek ikon
AJÁNLOM EGY ISMERŐSÖMNEK
Facebook megosztás ikon
MEGOSZTÁS

KAPCSOLATFELVÉTEL

Küldés

Az üzenetet sikeresen elküldtük!
Hiba történt!
INGATLAN ADATAI

Ingatlan jellege

ikerház

Belső terület

160 m²

Telek terület

580 m²

Tájolás

dél, délnyugat

Építési állapot

új

Építési mód

tégla

Szobák száma

4 szoba

Terasz

23.62 m²

Épület szintje

1.

Épült

2025

Ingatlan állapot

kívül: új
belül: új

Klíma

van

Szigetelés

15 cm

Ablak szerkezete

3 rétegű thermoplan

Fűtés

hőszivattyús

Komfort

összkomfort

Közműállapot

csatorna: bekötve
gáz: utcában
villany: bekötve
víz: bekötve

Energetika

A+:

Az időpont kérés naptár ikonja
HTML
Az időpont kérés naptár ikonja
PDF

Hasonló ingatlan hírdetések

Eladó új építésű családi ház, vagy kertes ház hirdetést keres Dunaföldvár területén?
Tekintse meg további ajánlatainkat!

eladó új építésű ikerház, Dunaföldvár

eladó új építésű ikerház

Dunaföldvár, csendes családi házas utcájában 3 hálószoba plusz amerikai konyhás új építésű családiház ELADÓ!

Tolna megye, Dunaföldvár, Pipacs utca
Dunaföldvár, csendes családi házas utcájában 3 hálószoba plusz amerikai konyhás új építésű családi ház ELADÓ! A 160 m2-es ikerházban 3 hálószoba, egy tágas és világos amerikai konyhás nappali, fürd...
Belső terület
160 m²
Telek terület
580 m²
Szobák
4

208 M Ft

CSOK igényelhető
CSOK igényelhető
Tolna megye - Dunaföldvár
Tolna megye - Dunaföldvár
Tolna megye - Dunaföldvár
Tolna megye - Dunaföldvár
Tolna megye - Dunaföldvár
Tolna megye - Dunaföldvár
Tolna megye - Dunaföldvár
Tolna megye - Dunaföldvár
Tolna megye - Dunaföldvár
Tolna megye - Dunaföldvár
Tolna megye - Dunaföldvár
Tolna megye - Dunaföldvár
Tolna megye - Dunaföldvár
Tolna megye - Dunaföldvár
Tolna megye - Dunaföldvár
Tolna megye - Dunaföldvár
Tolna megye - Dunaföldvár
Tolna megye - Dunaföldvár
Tolna megye - Dunaföldvár