KAPCSOLATFELVÉTEL
Ingatlan jellege
téglalakás
Belső terület
57 m²
Tájolás
délkelet
Építési állapot
új
Építési mód
tégla
Szobák száma
2 szoba
Loggia
2.8 m²
Emelet
3.
Épület szintje
5.
Épült
2023
Akadálymentes
igen
Lift
van
Ingatlan állapot
kívül: új
belül: új
Klíma
van
Fűtés
központi egyedi méréssel
Komfort
összkomfort
Kilátás
utcára
Energetika
nincs megadva
Budapest, IX. kerület, Rehabilitációs terület
Irányár
(1.76 M Ft/㎡)
Szobák
Emelet
Terület
A felújított szintek és a ráépített emeletek egyszerre hordozzák magukon a régmúlt és a kortárs idők építészetének stílusjegyeit. Megőrizve az eredeti, impozáns ornamentikát, a hatalmas ablakokat és a belmagasságot, az ingatlan az egyszerre elegáns és modern életvitel méltó színhelye.
A kivitelezés a stílus és a minőség jegyében történt, amelyet a közös területek kialakítása, vagy a földszinten kialakított, növényekkel beültetett kert is híven tükröz.
Minden lakáshoz tároló kerül értékesítésre.
Az elhelyezkedése kiváló, Ferencváros legjobban fejlődő részén van, ahol számos építkezés zajlik és zajlott az elmúlt években.
Tömegközlekedéssel könnyen megközelíthető, mivel számtalan villamos vonal van az épület mellett: 22B, 2M, .....A
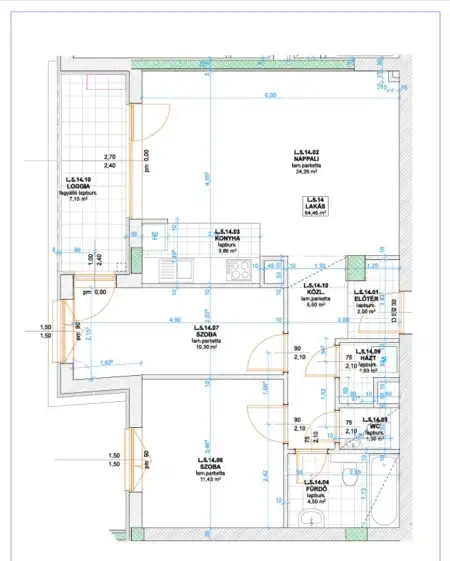
- Nagyon jó elrendezésű: a funkcionalitásukhoz kiválóan illeszkedő társas és jól szeparált, külön konyha, nappali ebédlővel, külön hálószoba, fürdőszoba zuhanyzóval, külön WC és egy előtér is helyet kapott. A lakás összterülete 57,19 m2 + 2,85 m2 loggia.
- Konyha kiállások a helyén, a konyhabútor nem tartozéka a lakásnak.
- A lakás utcára, délkelet felé néz.
- A nappaliban klíma került telepítésre, központi hűtés rendszerrel.
- 270 cm belmagasság
- A helységek marmoleum borításúak
- A lakáshoz tartozik egy 3.2 m2-es tároló
- Az ár 5%-os ÁFA-t tartalmaz.
Amennyiben hirdetésem felkeltette az érdeklődését, várom megtisztelő hívását.
belül: új
Budapest, IX. kerület, Rehabilitációs terület
Hitelkalkulátor

+36 70 634 2499
sales@danubiohomes.com
KAPCSOLATFELVÉTEL
Ingatlan jellege
téglalakás
Belső terület
57 m²
Tájolás
délkelet
Építési állapot
új
Építési mód
tégla
Szobák száma
2 szoba
Loggia
2.8 m²
Emelet
3.
Épület szintje
5.
Épült
2023
Lift
van
Ingatlan állapot
kívül: új
belül: új
Klíma
van
Fűtés
központi egyedi méréssel
Komfort
összkomfort
Kilátás
utcára
Energetika
nincs megadva