Eladó új építésű sorház - Győr

KAPCSOLAT
Kovács Eszter


+36 20 397

kovacs.eszter@

Az időpont kérés naptár ikonja
IDŐPONTOT KÉREK
A visszahívás kérés telefon ikonja egy azt körbe ölelő nyíllal
VISSZAHÍVÁST KÉREK
Ajánlom egy ismerősömnek ikon
AJÁNLOM EGY ISMERŐSÖMNEK
Facebook megosztás ikon
MEGOSZTÁS

KAPCSOLATFELVÉTEL

Küldés

Az üzenetet sikeresen elküldtük!
Hiba történt!
INGATLAN ADATAI

Ingatlan jellege

sorház

Belső terület

112 m²

Telek terület

303 m²

Tájolás

délnyugat

Építési állapot

új

Építési mód

tégla

Szobák száma

2+2 félszoba

Erkély

3.92 m²

Terasz

18.15 m²

Épület szintje

2.

Épült

2026

Ingatlan állapot

kívül: épülő
belül: épülő

Szigetelés

15 cm

Ablak szerkezete

3 rétegű thermoplan

Komfort

összkomfort

Közműállapot

csatorna: bekötve
gáz: bekötve
villany: bekötve
víz: bekötve

Energetika

nincs megadva

Az időpont kérés naptár ikonja
HTML
Az időpont kérés naptár ikonja
PDF
Eladó új építésű sorház
Ingatlan azonosító:
4166_ko

Győr-Moson-Sopron megye, Győr, Szitásdomb

Irányár

108 M Ft
(964.29 E Ft/㎡)

Szobák

2+2 félszoba

Terület

112 m²

Telek terület

303 m²
INGATLAN LEÍRÁSA
Családi ház, sorház – Győr Szitásdomb II.

A Komplex Ingatlaniroda megvételre kínálja Győr egyik legdinamikusabban fejlődő környezetében, a Szitásdomb II. lakóparkban (közigazgatásilag Vámosszabadi belterületén) ezt a kiváló adottságú, emeltszintű fűtéskész állapotban épülő, kétszintes, sorház jellegű, zárt sorú beépítésű lakóházat.

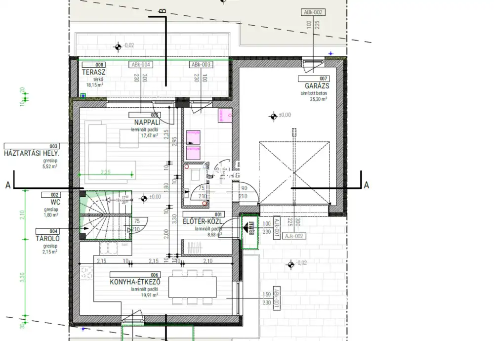
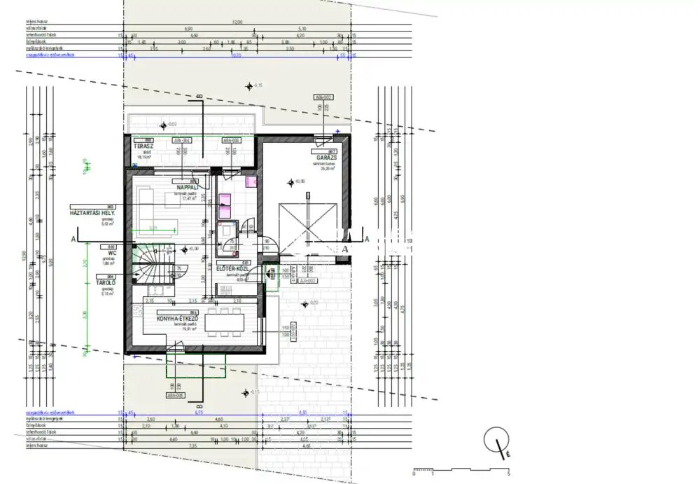
Az ingatlan 303 m²-es telken valósul meg, 2026. szeptemberi átadással, összesen 159 m² alapterülettel, amely az alábbiak szerint oszlik meg:
– nettó lakótér: 112 m²
– garázs: 25,2 m²
– terasz: 18,15 m²
– erkély: 3,92 m²

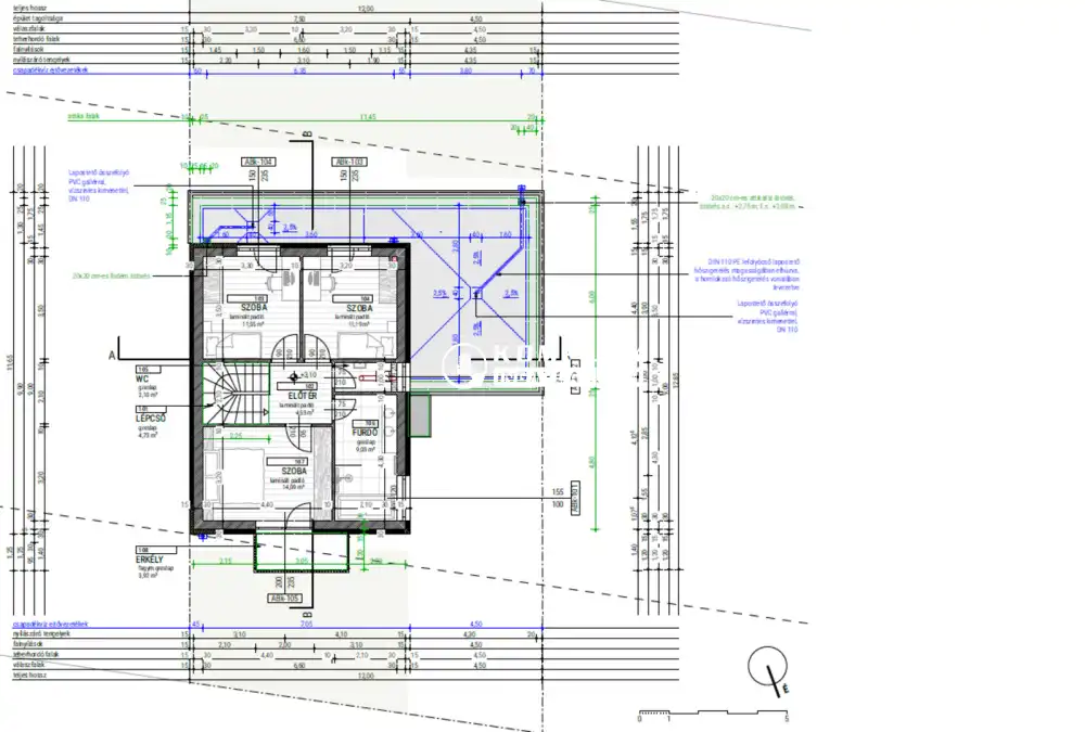
Az átgondolt alaprajzi kialakításnak köszönhetően az otthon nappali + 3 hálószobával rendelkezik, ahol az életterek tökélesen elkülönülnek egymástól.

A beruházás keretében 8 db lakóház épül egymás szomszédságában. A lakóházak önálló helyrajzi számmal rendelkeznek, nem társasházi formában kerülnek kialakításra.

Helyiségek elrendezése:
– Földszint: előtér, WC, háztartási helyiség, tároló, nappali, étkező-konyha, terasz, garázs
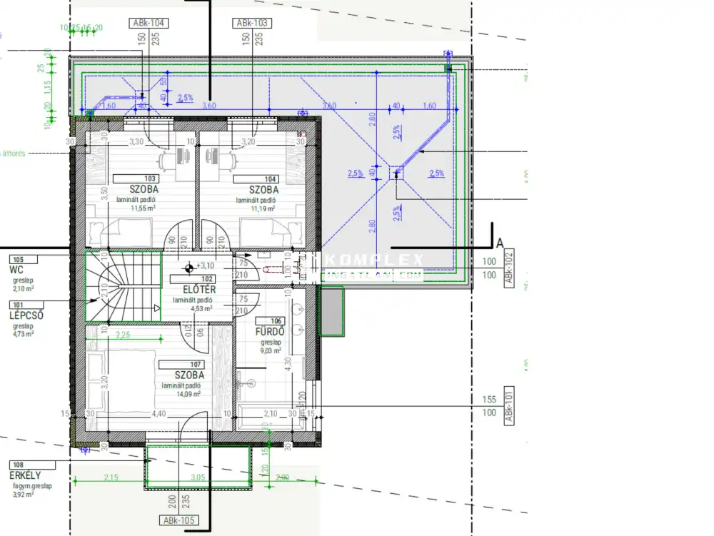
– Emelet: lépcső, előtér, 3 hálószoba, erkély, WC, fürdőszoba

Műszaki tartalom:
- Porotherm 30 N+F főfalazat
- 15 cm vastag homlokzati hőszigetelés
- mindkét szinten monolit vasbeton -födém
- lapostetős kialakítás
- háromrétegű üvegezésű műanyag nyílászárók, kívül antracit, belül fehér színben
- rejtett redőnytok és elektromos redőny előkészítés
- hőszigetelt műanyag bejárati ajtó styrodur betéttel és biztonsági zárral
- Hörmann típusú, antracit színű, motoros vezérlésű szekcionált garázskapu
- Központi kondenzációs gázkazán beépített HMV tárolóval
- padlófűtéssel történik minden helyiségben, így a garázsban is
- 2 db, egyenként 3,5 kWh teljesítményű hűtő-fűtő klímaberendezés, bel- és kültéri egységekkel

A vételár részét képezi:
- a terasz és a kocsibejáró térkövezése
– a hátsó udvar körbekerítése 3D táblás drótkerítéssel
– a hátsó terasz kerti csap és elektromos kiállása
– tereprendezés

Igény esetén a kivitelező kulcsrakész befejezést is vállal.

Emeltszintű fűtéskész vételár: 108.000.000 Ft

További információért és megtekintésért keressen bizalommal!

Irodánk díjmentesen segít hitel- és támogatás ügyintézés során, hogy Ön könnyedén megtalálja a legjobb pénzügyi megoldásokat.


INGATLAN ADATAI

Ingatlan jellege
sorház
Belső terület
112 m²
Telek terület
303 m²
Tájolás
délnyugat
Építési állapot
új
Építési mód
tégla
Szobák száma
2+2 félszoba
Erkély
3.92 m²
Terasz
18.15 m²
Épület szintje
2.
Épült
2026
Ingatlan állapot
kívül: épülő
belül: épülő
Szigetelés
15 cm
Ablak szerkezete
3 rétegű thermoplan
Komfort
összkomfort
Közműállapot
csatorna: bekötve
gáz: bekötve
villany: bekötve
víz: bekötve
Energetika
nincs megadva
TÉRKÉP

Győr-Moson-Sopron megye, Győr, Szitásdomb

Hitelkalkulátor


KAPCSOLAT
Kovács Eszter
Kovács Eszter


+36 20 397 0776

kovacs.eszter@komplexingatlan.com

KAPCSOLAT
Kovács Eszter

+36 20 397

kovacs.eszter@

Az időpont kérés naptár ikonja
IDŐPONTOT KÉREK
A visszahívás kérés telefon ikonja egy azt körbe ölelő nyíllal
VISSZAHÍVÁST KÉREK
Ajánlom egy ismerősömnek ikon
AJÁNLOM EGY ISMERŐSÖMNEK
Facebook megosztás ikon
MEGOSZTÁS

KAPCSOLATFELVÉTEL

Küldés

Az üzenetet sikeresen elküldtük!
Hiba történt!
INGATLAN ADATAI

Ingatlan jellege

sorház

Belső terület

112 m²

Telek terület

303 m²

Tájolás

délnyugat

Építési állapot

új

Építési mód

tégla

Szobák száma

2+2 félszoba

Erkély

3.92 m²

Terasz

18.15 m²

Épület szintje

2.

Épült

2026

Ingatlan állapot

kívül: épülő
belül: épülő

Szigetelés

15 cm

Ablak szerkezete

3 rétegű thermoplan

Komfort

összkomfort

Közműállapot

csatorna: bekötve
gáz: bekötve
villany: bekötve
víz: bekötve

Energetika

nincs megadva

Az időpont kérés naptár ikonja
HTML
Az időpont kérés naptár ikonja
PDF

Hasonló ingatlan hírdetések

Eladó új építésű családi ház, vagy kertes ház hirdetést keres Győr területén?
Jelenleg nincsenek hasonló aktuális ajánlatok Győr településen.
Tekintse meg további Győr-Moson-Sopron megyei ajánlatainkat !

eladó új építésű családi ház, Veszprémvarsány

eladó új építésű családi ház

Győr-Moson-Sopron megye, Veszprémvarsány
Új építésű családi ház eladó Veszprémvarsányban A Komplex Ingatlaniroda megvételre kínálja Veszprémvarsány csendes, családi házas övezetében ezt az új építésű családi házat, amely egy 812 m²-es sa...
Belső terület
88 m²
Telek terület
812 m²
Szobák
1+3

75 M Ft + Áfa

eladó családi ház, Mosonmagyaróvár

eladó családi ház

Győr-Moson-Sopron megye, Mosonmagyaróvár, Duna lakópark
Exkluzív családi ház eladó Mosonmagyaróváron – Duna-Liget lakópark, többfunkciós kialakítással A Komplex Ingatlaniroda kínálatában elérhető Mosonmagyaróváron, a Duna-Liget lakópark rendezett, nyugo...
Belső terület
156 m²
Telek terület
709 m²
Szobák
4

169 M Ft

eladó új építésű családi ház, Levél

eladó új építésű családi ház

Eladó családi ház Levélen! ???? Kiváló közlekedéssel, nyugodt környéken várja új tulajdonosát ez a remek lehetőség! Álmai otthona lehet 80 millió forintért! Áttekinthető, tágas terek és kényelmes elrendezés várja Önt Levél csendes részén, Győr közelében. Ne hagyja ki! ???? #ingatlan #Levél #családiház

Győr-Moson-Sopron megye, Levél, Petőfi Sándor utca
Otthonos családi ház Levél központi részén eladó! Levélen, Győr-Moson-Sopron megyében kínálok megvételre egy jól megközelíthető 92m2(nettó 82m2) fűtéskész családi házat . Az ingatlan kiváló tömegk...
Belső terület
92 m²
Telek terület
300 m²
Szobák
4

80 M Ft

Új építésű!
Új építésű
eladó új építésű családi ház, Levél

eladó új építésű családi ház

Kivételes lehetőség Levélen! ???? Igazi családi fészek kétszintes kialakítással, remek közlekedéssel. A modern, tágas elrendezés minden család álma! ???? Ne szalaszd el, tapasztald meg te is a nyugodt, harmonikus vidéki életérzést. ???????? #EladóHáz #Levél

Győr-Moson-Sopron megye, Levél, Petőfi Sándor utca
Tágas, kétszintes családi ház Levél központi részén Az eladásra kínált 92m2(nettó:82m2) ingatlan Levél településen, Győr-Moson-Sopron megyében található, csendes, harmonikus környezetben. A két szi...
Belső terület
92 m²
Telek terület
200 m²
Szobák
4

90 M Ft

Új építésű!
Új építésű
eladó családi ház, Harka

eladó családi ház

Győr-Moson-Sopron megye, Harka
Harka külterületén, mesés környezetben, távol a város nyüzsgésétől, eladó egy 40.270m2-es területre épített bruttó 290m2, nettó:3x80m2-es, 3 szintes, alápincézett, teljesen önellátó ingatlan, amely ...
Belső terület
160 m²
Telek terület
40270 m²
Szobák
4

370 M Ft

azonnal költözhető
Azonnal költözhető
eladó családi ház, Mindszentpuszta

eladó családi ház

Győr-Moson-Sopron megye, Mindszentpuszta
Új Építésű Ingatlanok Egyedülálló Ajánlatként Mindszentpusztán! Örömmel mutatjuk be az ideális otthont az Ön számára. Öt gyönyörű nagy méretű telken, a festői Mindszentpusztán, Győrtől rövid távolság...
Belső terület
120 m²
Telek terület
1774 m²
Szobák
2

95 M Ft

eladó családi ház, Mosonmagyaróvár

eladó családi ház

Győr-Moson-Sopron megye, Mosonmagyaróvár
...
Belső terület
85 m²
Telek terület
350 m²
Szobák
3

122 M Ft

Győr-Moson-Sopron megye - Győr
Győr-Moson-Sopron megye - Győr
Győr-Moson-Sopron megye - Győr
Győr-Moson-Sopron megye - Győr
Győr-Moson-Sopron megye - Győr
Győr-Moson-Sopron megye - Győr
Győr-Moson-Sopron megye - Győr
Győr-Moson-Sopron megye - Győr
Győr-Moson-Sopron megye - Győr
Győr-Moson-Sopron megye - Győr
Győr-Moson-Sopron megye - Győr
Győr-Moson-Sopron megye - Győr
Győr-Moson-Sopron megye - Győr