Eladó új építésű ikerház - Pásztó

KAPCSOLAT
Kómár-Benke Nikoletta


+36 70 396

almaestatekft@

Az időpont kérés naptár ikonja
IDŐPONTOT KÉREK
A visszahívás kérés telefon ikonja egy azt körbe ölelő nyíllal
VISSZAHÍVÁST KÉREK
Ajánlom egy ismerősömnek ikon
AJÁNLOM EGY ISMERŐSÖMNEK
Facebook megosztás ikon
MEGOSZTÁS

KAPCSOLATFELVÉTEL

Küldés

Az üzenetet sikeresen elküldtük!
Hiba történt!
INGATLAN ADATAI

Ingatlan jellege

ikerház

Belső terület

62 m²

Telek terület

310 m²

Tájolás

délnyugat

Építési állapot

új

Építési mód

tégla

Szobák száma

3 szoba

Szobák elhelyezkedése

külön nyílik min. 2 szoba

Épület szintje

1.

Épült

2025

Ingatlan állapot

kívül: új
belül: új

Klíma

van

Szigetelés

15 cm

Ablak szerkezete

3 rétegű thermoplan

Fűtés

gázkazán

Komfort

összkomfort

Parkolás

van fedetlen felszíni beálló

Közműállapot

csatorna: bekötve
gáz: bekötve
villany: bekötve
víz: bekötve

Energetika

A++:

Az időpont kérés naptár ikonja
HTML
Az időpont kérés naptár ikonja
PDF
Eladó új építésű ikerház
Ingatlan azonosító:
67_aes

Nógrád megye, Pásztó, Sziget utca

Irányár

56.5 M Ft
(911.29 E Ft/㎡)

Szobák

3 szoba

Terület

62 m²

Telek terület

310 m²
INGATLAN LEÍRÁSA
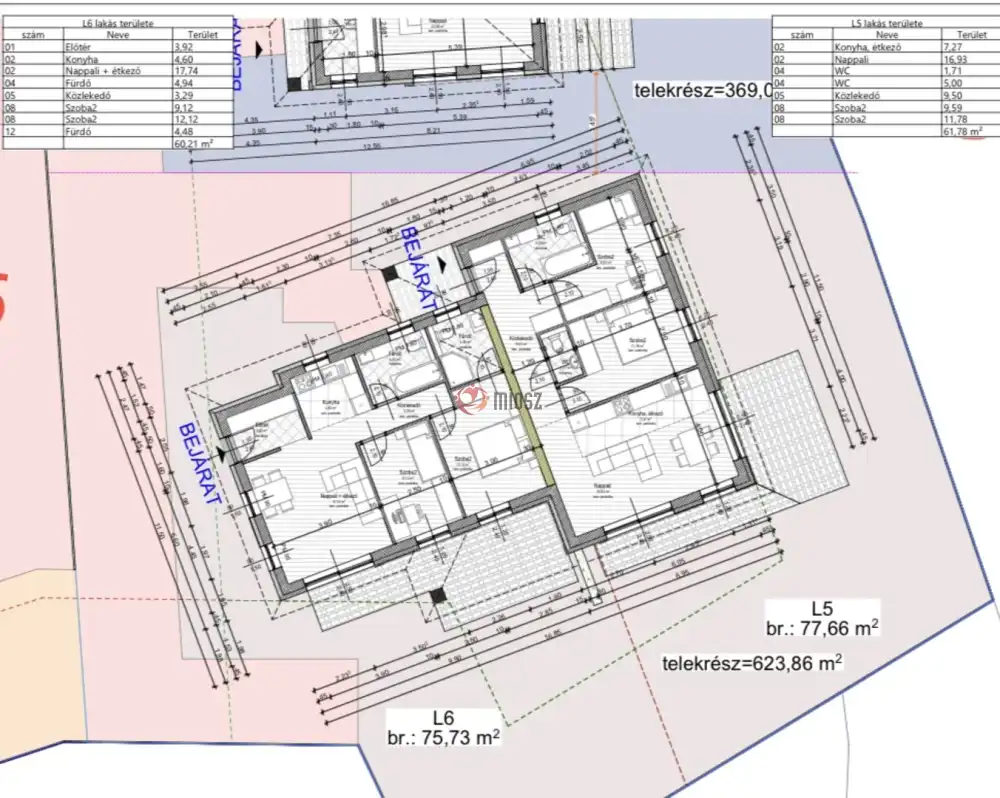
Eladásra kínálok Nógrád vármegyében, Pásztón egy igényesen kialakított, új építésű lakóparkban található, amerikai stílusú ikerházat.
Az ingatlan 62 m² lakóterületű, 310 m²-es saját telekrésszel rendelkezik, modern műszaki tartalommal és minőségi anyaghasználattal készül.

Az ikerház másik fele – 60 m² alapterülettel – igény esetén szintén megvásárolható, a két lakrész összenyitható, így akár nagyobb családi otthonként is kiváló megoldást jelent.

Helyiségek:

Előszoba

2 szoba

Nappali

Konyha + étkező

Kádas fürdőszoba

Külön WC

Közlekedő

Külső, burkolt terasz

Műszaki jellemzők:

Főfalazat: 30 cm-es tégla

Belmagasság: minimum 2,55 m

Homlokzati szigetelés: 15 cm dryvit rendszer

Tető: fa szerkezet, Bramac cserépfedés

Fűtés: kondenzációs gázkazán, padlófűtés

Hűtés: inverteres hűtő-fűtő klíma a nappaliban

Beltéri ajtók: MDF ajtók, küszöb nélkül

Elektromos szerelvények: Legrand Cariva

Belső falak: kétszeri diszperziós festés, fehér színben

Részletes műszaki leírást és vállalást e-mailben tudok küldeni.

Külső kialakítás:

Parkosított, kerítéssel körbezárt telek

Térkövezett udvari részek

Külön bejáratú, saját parkoló

Burkolt terasz

A lakópark közös területei rendezettek, egységes arculattal készülnek

Az ingatlan egy jó minőségű, átgondolt kialakítású lakóparkban helyezkedik el, amelyet nagy múltú, megbízható kivitelező épít, számos referenciával.
A kivitelező korábbi munkái akár 60 km-es körzeten belül is megtekinthetők, előzetes egyeztetés alapján.

Elhelyezkedés

Pásztó csendes, nyugodt részén, mégis pár percre a városközponttól található.
Jó közlekedés, teljes infrastruktúra jellemzi, így családoknak és befektetésnek egyaránt ideális választás.

Finanszírozás

Az ingatlan megfelel a 3%-os, államilag támogatott Otthon Start hitel feltételeinek, amely a vásárláshoz igénybe vehető.

Az ingatlan rugalmasan megtekinthető, akár hétvégén is.
Referenciaházak megtekintése előre egyeztetett időpontban lehetséges.

INGATLAN ADATAI

Ingatlan jellege
ikerház
Belső terület
62 m²
Telek terület
310 m²
Tájolás
délnyugat
Építési állapot
új
Építési mód
tégla
Szobák száma
3 szoba
Szobák elhelyezkedése
külön nyílik min. 2 szoba
Épület szintje
1.
Épült
2025
Ingatlan állapot
kívül: új
belül: új
Klíma
van
Szigetelés
15 cm
Ablak szerkezete
3 rétegű thermoplan
Fűtés
gázkazán
Komfort
összkomfort
Parkolás
van fedetlen felszíni beálló
Közműállapot
csatorna: bekötve
gáz: bekötve
villany: bekötve
víz: bekötve
Energetika
A++:
TÉRKÉP

Nógrád megye, Pásztó, Sziget utca

Hitelkalkulátor


KAPCSOLAT
Kómár-Benke Nikoletta
Kómár-Benke Nikoletta


+36 70 396 5533

almaestatekft@gmail.com

KAPCSOLAT
Kómár-Benke Nikoletta

+36 70 396

almaestatekft@

Az időpont kérés naptár ikonja
IDŐPONTOT KÉREK
A visszahívás kérés telefon ikonja egy azt körbe ölelő nyíllal
VISSZAHÍVÁST KÉREK
Ajánlom egy ismerősömnek ikon
AJÁNLOM EGY ISMERŐSÖMNEK
Facebook megosztás ikon
MEGOSZTÁS

KAPCSOLATFELVÉTEL

Küldés

Az üzenetet sikeresen elküldtük!
Hiba történt!
INGATLAN ADATAI

Ingatlan jellege

ikerház

Belső terület

62 m²

Telek terület

310 m²

Tájolás

délnyugat

Építési állapot

új

Építési mód

tégla

Szobák száma

3 szoba

Szobák elhelyezkedése

külön nyílik min. 2 szoba

Épület szintje

1.

Épült

2025

Ingatlan állapot

kívül: új
belül: új

Klíma

van

Szigetelés

15 cm

Ablak szerkezete

3 rétegű thermoplan

Fűtés

gázkazán

Komfort

összkomfort

Parkolás

van fedetlen felszíni beálló

Közműállapot

csatorna: bekötve
gáz: bekötve
villany: bekötve
víz: bekötve

Energetika

A++:

Az időpont kérés naptár ikonja
HTML
Az időpont kérés naptár ikonja
PDF

Hasonló ingatlan hírdetések

Eladó új építésű családi ház, vagy kertes ház hirdetést keres Pásztó területén?
Tekintse meg további ajánlatainkat!

eladó új építésű ikerház, Pásztó

eladó új építésű ikerház

Nógrád megye, Pásztó
PÁSZTÓ BELVÁROS - PRÉMIUM IKERHÁZAK Eladásra kínálok, kizárólag az Ingatlaniroda portfóliójából Pásztó belvárosának közelében, mégis nyugodt, szép környezetben épülő 145 m²-es és 132 m²-es prémi...
Belső terület
122 m²
Telek terület
321 m²
Szobák
3

88.9 M Ft

Új építésű!
Új építésű
eladó új építésű ikerház, Pásztó

eladó új építésű ikerház

Nógrád megye, Pásztó
PÁSZTÓ BELVÁROS - PRÉMIUM IKERHÁZAK Eladásra kínálok, kizárólag az Ingatlaniroda portfóliójából Pásztó belvárosának közelében, mégis nyugodt, szép környezetben épülő 145 m²-es és 132 m²-es prémium...
Belső terület
129 m²
Telek terület
564 m²
Szobák
3

97.9 M Ft

Új építésű!
Új építésű
eladó új építésű családi ház, Pásztó

eladó új építésű családi ház

Nógrád megye, Pásztó
Eladásra kínálok Nógrád vármegyében, Pásztón egy új építésű, amerikai stílusú családi házat. Az ingatlan 90 m² lakóterülettel és 369 m²-es telken helyezkedik el, modern műszaki tartalommal, átgondo...
Belső terület
90 m²
Telek terület
370 m²
Szobák
4

71.5 M Ft

eladó új építésű ikerház, Pásztó

eladó új építésű ikerház

Nógrád megye, Pásztó, Sziget utca
Eladásra kínálok, kizárólag az Ingatlaniroda portfóliójából, Nógrád Vármegyében Pásztón, egy új építésű, 90 m²-es Amerikai stílusú családi házat, amely egy 369 m²-es telken fekszik. Az ingatlan modern...
Belső terület
90 m²
Telek terület
369 m²
Szobák
3

71.5 M Ft

Új építésű!
Új építésű
eladó új építésű ikerház, Pásztó

eladó új építésű ikerház

Nógrád megye, Pásztó, Sziget utca
Új Építésű Amerikai Stílusú Ikerházak Pásztón! Eladásra kínálok, kizárólag az Ingatlaniroda portfóliójából Nógrád Vármegyében Pásztón, Amerikai stílusú, modern műszaki tartalommal és prémium minősé...
Belső terület
62 m²
Telek terület
310 m²
Szobák
2

56.5 M Ft

Új építésű!
Új építésű
eladó új építésű ikerház, Pásztó

eladó új építésű ikerház

Nógrád megye, Pásztó, Sziget utca
Új Építésű Amerikai Stílusú Ikerházak Pásztón! Eladásra kínálok, kizárólag az Ingatlaniroda portfóliójából Nógrád Vármegyében Pásztón, Amerikai stílusú, modern műszaki tartalommal és prémium minősé...
Belső terület
60 m²
Telek terület
310 m²
Szobák
2

55.5 M Ft

Új építésű!
Új építésű
eladó új építésű családi ház, Pásztó

eladó új építésű családi ház

Nógrád megye, Pásztó, Sziget utca
Pásztón Eladó Újépítésű Amerikai Stílusú Családi Ház! Eladásra kínálok, kizárólag az Ingatlaniroda portfóliójából Nógrád Vármegyében, Pásztón, belvárosi részen, de mégis csendes utcában, egy 280nm ...
Belső terület
60 m²
Telek terület
280 m²
Szobák
2

55.5 M Ft

Új építésű!
Új építésű
eladó új építésű családi ház, Pásztó

eladó új építésű családi ház

Nógrád megye, Pásztó
Eladó Újépítésű Amerikai Stílusú Családi Ház! Eladásra kínálok, kizárólag az Ingatlaniroda portfóliójából Nógrád Vármegyében, Pásztón, belvárosi részen, de mégis csendes utcában, egy 158nm telken f...
Belső terület
38 m²
Telek terület
158 m²
Szobák
1

39 M Ft

Új építésű!
Új építésű
Nógrád megye - Pásztó
Nógrád megye - Pásztó
Nógrád megye - Pásztó
Nógrád megye - Pásztó
Nógrád megye - Pásztó
Nógrád megye - Pásztó
Nógrád megye - Pásztó
Nógrád megye - Pásztó
Nógrád megye - Pásztó
Nógrád megye - Pásztó
Nógrád megye - Pásztó
Nógrád megye - Pásztó
Nógrád megye - Pásztó
Nógrád megye - Pásztó
Nógrád megye - Pásztó
Nógrád megye - Pásztó
Nógrád megye - Pásztó
Nógrád megye - Pásztó
Nógrád megye - Pásztó
Nógrád megye - Pásztó
Nógrád megye - Pásztó