Eladó új építésű ikerház - Nyírtura

garázzsal
Garázzsal
KAPCSOLAT
Leviczki Péter


+36 30 693

info@

Az időpont kérés naptár ikonja
IDŐPONTOT KÉREK
A visszahívás kérés telefon ikonja egy azt körbe ölelő nyíllal
VISSZAHÍVÁST KÉREK
Ajánlom egy ismerősömnek ikon
AJÁNLOM EGY ISMERŐSÖMNEK
Facebook megosztás ikon
MEGOSZTÁS

KAPCSOLATFELVÉTEL

Küldés

Az üzenetet sikeresen elküldtük!
Hiba történt!
INGATLAN ADATAI

Ingatlan jellege

ikerház

Belső terület

68 m²

Telek terület

400 m²

Tájolás

dél, kelet, nyugat

Építési állapot

új

Építési mód

tégla

Szobák száma

3 szoba

Épület szintje

1.

Épült

2026

Ingatlan állapot

kívül: új
belül: új

Szigetelés

15 cm

Ablak szerkezete

3 rétegű thermoplan

Fűtés

cirko

Komfort

összkomfort

Parkolás

van önálló garázs

Közműállapot

csatorna: bekötve
gáz: bekötve
villany: bekötve
víz: bekötve

Energetika

nincs megadva

Az időpont kérés naptár ikonja
HTML
Az időpont kérés naptár ikonja
PDF
Eladó új építésű ikerház
Ingatlan azonosító:
839_ahi

Szabolcs-Szatmár-Bereg megye, Nyírtura

Irányár

44.5 M Ft
(654.41 E Ft/㎡)

Szobák

3 szoba

Terület

68 m²

Telek terület

400 m²
INGATLAN LEÍRÁSA
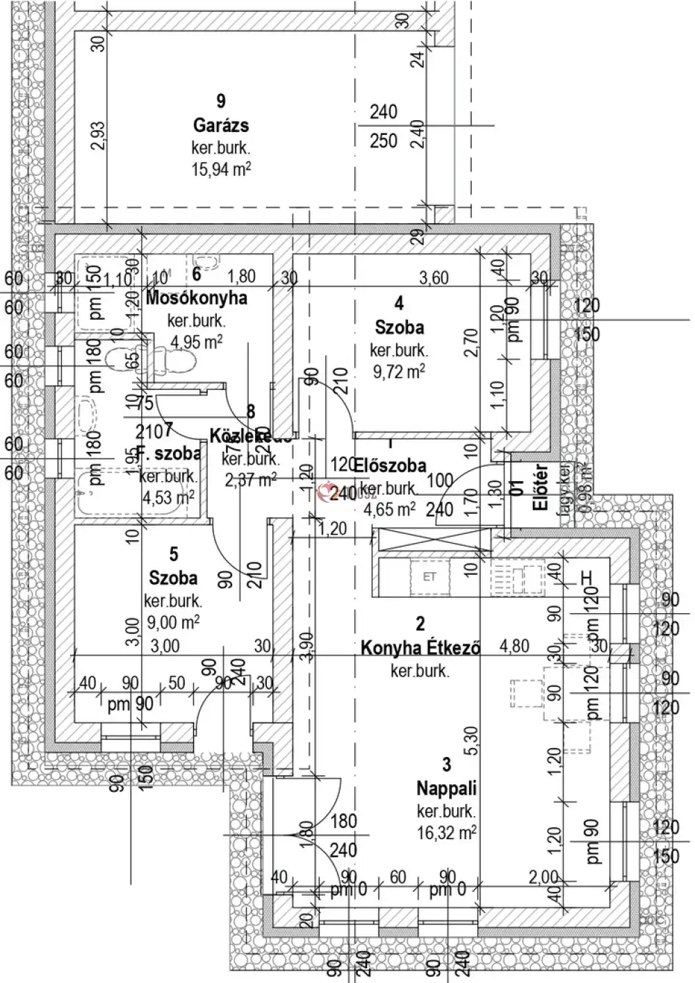
Nyíregyháza Tesco-tól 9 km-re új lakóparkban 2 szobás lakás áráért (garázs nélkül) új építésű ikerház eladó!

Jellemzői:

tégla építésű, cseréptetővel
teljes közművel
2 hálószoba + nappali elosztással
1 fürdő + 2 wc
mosókonyha
fedetlen terasszal
csak garázskapcsolat van a 2 ház között
gázfűtés padlófűtéssel
fehér műanyag nyílászárókkal 3 rétegű üvegezéssel
szekcionált hőszigetelt motoros garázskapuval

CSOK, Otthon start 3% hitel igénybe vehető rá!
A vételárból akár 5M Ft áfa visszaigényelhető
Lakásbeszámítás lehetséges!
Rengeteg referenciával rendelkező kivitelező, 15 éve dolgozunk együtt!

Kezdés 2026.tavasz. Bővebb információért keressen bizalommal, le ne maradjon róla!

INGATLAN ADATAI

Ingatlan jellege
ikerház
Belső terület
68 m²
Telek terület
400 m²
Tájolás
dél, kelet, nyugat
Építési állapot
új
Építési mód
tégla
Szobák száma
3 szoba
Épület szintje
1.
Épült
2026
Ingatlan állapot
kívül: új
belül: új
Szigetelés
15 cm
Ablak szerkezete
3 rétegű thermoplan
Fűtés
cirko
Komfort
összkomfort
Parkolás
van önálló garázs
Közműállapot
csatorna: bekötve
gáz: bekötve
villany: bekötve
víz: bekötve
Energetika
nincs megadva
TÉRKÉP

Szabolcs-Szatmár-Bereg megye, Nyírtura

Hitelkalkulátor


KAPCSOLAT
Leviczki Péter
Leviczki Péter


+36 30 693 2699

info@almaimhaza.hu

KAPCSOLAT
Leviczki Péter

+36 30 693

info@

Az időpont kérés naptár ikonja
IDŐPONTOT KÉREK
A visszahívás kérés telefon ikonja egy azt körbe ölelő nyíllal
VISSZAHÍVÁST KÉREK
Ajánlom egy ismerősömnek ikon
AJÁNLOM EGY ISMERŐSÖMNEK
Facebook megosztás ikon
MEGOSZTÁS

KAPCSOLATFELVÉTEL

Küldés

Az üzenetet sikeresen elküldtük!
Hiba történt!
INGATLAN ADATAI

Ingatlan jellege

ikerház

Belső terület

68 m²

Telek terület

400 m²

Tájolás

dél, kelet, nyugat

Építési állapot

új

Építési mód

tégla

Szobák száma

3 szoba

Épület szintje

1.

Épült

2026

Ingatlan állapot

kívül: új
belül: új

Szigetelés

15 cm

Ablak szerkezete

3 rétegű thermoplan

Fűtés

cirko

Komfort

összkomfort

Parkolás

van önálló garázs

Közműállapot

csatorna: bekötve
gáz: bekötve
villany: bekötve
víz: bekötve

Energetika

nincs megadva

Az időpont kérés naptár ikonja
HTML
Az időpont kérés naptár ikonja
PDF

Hasonló ingatlan hírdetések

Eladó új építésű családi ház, vagy kertes ház hirdetést keres Nyírtura területén?
Tekintse meg további ajánlatainkat!

eladó új építésű ikerház, Nyírtura

eladó új építésű ikerház

Szabolcs-Szatmár-Bereg megye, Nyírtura
Nyíregyháza Tesco-tól 9 km-re új lakóparkban 2 szobás lakás áráért (garázs nélkül) új építésű ikerház eladó! Jellemzői: tégla építésű, cseréptetővel teljes közművel 2 hálószoba + nappali elosz...
Belső terület
83 m²
Telek terület
400 m²
Szobák
3

49.9 M Ft

CSOK igényelhető
CSOK igényelhető
eladó új építésű családi ház, Nyírtura

eladó új építésű családi ház

Szabolcs-Szatmár-Bereg megye, Nyírtura
Nyíregyházától 9 km-re új építésű lakóparkban tégla építésű különálló családi ház eladó! Jellemzők: tégla építésű, cseréptetővel beton födémmel! 3 hálószoba + nappali gardrób kamra 2 állásos ...
Belső terület
150 m²
Telek terület
900 m²
Szobák
4

96.9 M Ft

Új építésű!
Új építésű
eladó új építésű családi ház, Nyírtura

eladó új építésű családi ház

Szabolcs-Szatmár-Bereg megye, Nyírtura
Nyíregyházától 10 km-re új építésű lakóparkban különálló családi ház megrendelhető. Jellemzők: tégla építésű, cseréptetővel 4 hálószoba + nappali 1 fürdő + 2 wc mosókonyha Természetesen eg...
Belső terület
113 m²
Telek terület
900 m²
Szobák
5

70.9 M Ft

eladó új építésű családi ház, Nyírtura

eladó új építésű családi ház

Bomba ár - Bomba lehetőség!

Szabolcs-Szatmár-Bereg megye, Nyírtura
Nyíregyházától 10 km-re új építésű lakóparkban különálló családi ház megrendelhető. Jellemzők: tégla építésű, cseréptetővel 3 hálószoba + nappali 2 fürdő + 2 wc mosókonyha kamra Természe...
Belső terület
94 m²
Telek terület
900 m²
Szobák
4

59.8 M Ft

akciós ár
Akciós
Szabolcs-Szatmár-Bereg megye - Nyírtura
Szabolcs-Szatmár-Bereg megye - Nyírtura
Szabolcs-Szatmár-Bereg megye - Nyírtura