KAPCSOLATFELVÉTEL
Ingatlan jellege
ikerház
Belső terület
101 m²
Telek terület
201 m²
Tájolás
délkelet
Építési állapot
új
Építési mód
tégla
Szobák száma
5 szoba
Terasz
9 m²
Épület szintje
2.
Épült
2025
Ingatlan állapot
kívül: új
belül: új
Klíma
van
Szigetelés
12 cm
Ablak szerkezete
3 rétegű thermoplan
Fűtés
hőszivattyús
Komfort
duplakomfort
Parkolás
van önálló garázs
Közműállapot
csatorna: bekötve
gáz: nincs
villany: bekötve
víz: bekötve
Energetika
nincs megadva
Pest megye, Gyál
Irányár
(1.12 M Ft/㎡)
Szobák
Terület
Telek terület
BERUHÁZÓI ÁRON!
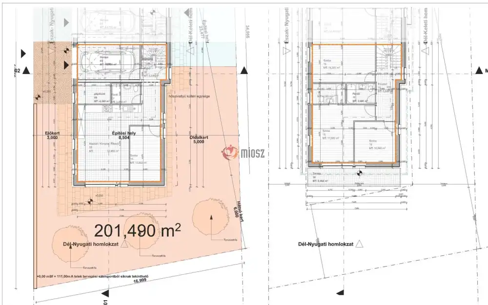
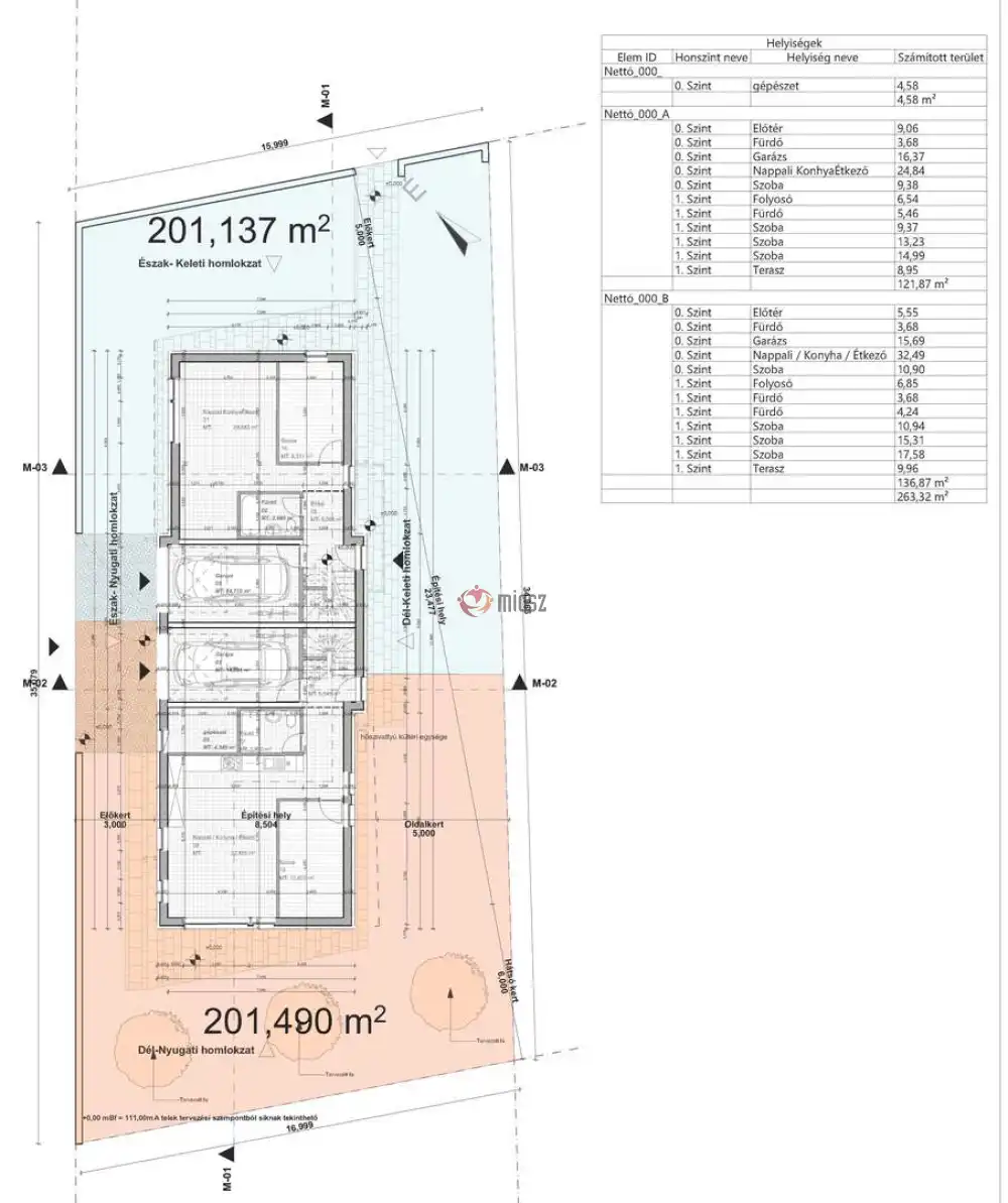
Eladó Gyálon, új építésű, energiatakarékos, kétszintes, praktikus belső kialakítású, nettó 113 nm-es, amerikai konyhás nappali + 4 szobás ikerház, garázzsal, 201 nm-es telekkel.
A lakótér 97 nm, + garázs (16.37nm), + terasz (9nm).
Belső elrendezés:
-földszinten amerikai konyhás nappali, szoba, fürdőszoba, előtér, garázs,
-emeleten 3 szoba, fürdőszoba, közlekedő, terasz.
Az ikerház másik fele nettó 127 nm-es, amerikai konyhás nappali + 4 szoba, 3 fürdőszoba, terasz, garázs helyiségekkel, 201 nm-es telekkel.
Ára: 126.99MFt
Az ingatlan maximális energiahatékonyságát a korszerű építőanyagok és technológia biztosítja:
- főfalak 30-as Porotherm téglából, Silka 200-as hanggátló lakáselválasztó falazattal, 12 cm-es dryvit szigeteléssel
- beton cserépfedés,
- 3 rétegű üvegezésű műanyag nyílászárók, kívül világos szürke, belül fehér színben,
- redőnytok előkészítés, igény esetén – értékegyeztetéssel – redőnnyel, szúnyoghálóval,
- hőszivattyús fűtés, padlófűtéssel,
- oldalfali fan coil,
-fürdőszobákban törölközőszárítós radiátor,
-elektromos garázskapu,
- választható burkolatok, szaniterek, belső ajtók:
laminált padló 6.000,Ft/nm-ig,
fürdőszoba-előtér csempeburkolat 8.000,-Ft/nm-ig,
háztartási helyiség, tároló garázs greslap 4.000,-Ft/nm-ig,
terasz csúszás és fagyálló greslap 8.000,-Ft/nm-ig.
Hívjon a részletekért, a részletes műszaki tartalomért.
Gyál a XVIII. kerület szomszédságában elhelyezkedő, jó infrastruktúrával rendelkező település.
Jól megközelíthető autóval (M5, M0), vonattal és autóbusszal is.
A településen általános iskolák, Alapfokú Művészeti Iskola, technikum, óvodák, bölcsőde, bevásárlási lehetőségek, felnőtt és gyermek háziorvosok, gyógyszertár, egyszóval minden adott, ami a mindennapokhoz szükséges.
Irodánk ÚJ ÉPÍTÉSŰ ingatlanok specialistája, felkészült értékesítőkkel!
Jogi háttérrel (kedvező díjazással) és az egyik legjobb, bank semleges HITELKÖZVETÍTŐVEL segítjük vásárlását.
Hitelszakértőnk teljes körű ügyintézéssel áll Vevőink rendelkezésére, legyen szó OTTHON START, CSOK+, BABAVÁRÓ vagy a legjobb piaci hitelről.
Új építésű ingatlanjainkat BERUHÁZÓI ÁRON értékesítjük!
Amennyiben értékesíteni kívánja ingatlanát, irodánk egyedi, kedvező ajánlattal áll rendelkezésére!
belül: új
gáz: nincs
villany: bekötve
víz: bekötve
Pest megye, Gyál
Hitelkalkulátor

+36 20 334 3328,
arenaingatlanok@gmail.com
KAPCSOLATFELVÉTEL
Ingatlan jellege
ikerház
Belső terület
101 m²
Telek terület
201 m²
Tájolás
délkelet
Építési állapot
új
Építési mód
tégla
Szobák száma
5 szoba
Terasz
9 m²
Épület szintje
2.
Épült
2025
Ingatlan állapot
kívül: új
belül: új
Klíma
van
Szigetelés
12 cm
Ablak szerkezete
3 rétegű thermoplan
Fűtés
hőszivattyús
Komfort
duplakomfort
Parkolás
van önálló garázs
Közműállapot
csatorna: bekötve
gáz: nincs
villany: bekötve
víz: bekötve
Energetika
nincs megadva