Eladó új építésű ikerház - Gödöllő

KAPCSOLAT
Kómár-Benke Nikoletta


+36 70 396

almaestatekft@

Az időpont kérés naptár ikonja
IDŐPONTOT KÉREK
A visszahívás kérés telefon ikonja egy azt körbe ölelő nyíllal
VISSZAHÍVÁST KÉREK
Ajánlom egy ismerősömnek ikon
AJÁNLOM EGY ISMERŐSÖMNEK
Facebook megosztás ikon
MEGOSZTÁS

KAPCSOLATFELVÉTEL

Küldés

Az üzenetet sikeresen elküldtük!
Hiba történt!
INGATLAN ADATAI

Ingatlan jellege

ikerház

Belső terület

95 m²

Telek terület

389 m²

Tájolás

délnyugat

Építési állapot

új

Építési mód

tégla

Szobák száma

4 szoba

Épület szintje

1.

Épült

2026

Ingatlan állapot

kívül: új
belül: új

Szigetelés

10 cm

Ablak szerkezete

3 rétegű thermoplan

Fűtés

padlófűtés

Komfort

duplakomfort

Parkolás

van fedetlen felszíni beálló

Közműállapot

csatorna: bekötve
gáz: bekötve
villany: bekötve
víz: bekötve

Energetika

A++:

Az időpont kérés naptár ikonja
HTML
Az időpont kérés naptár ikonja
PDF
Eladó új építésű ikerház
Ingatlan azonosító:
57_aes

Pest megye, Gödöllő, Fecske utca

Irányár

115 M Ft
(1.21 M Ft/㎡)

Szobák

4 szoba

Terület

95 m²

Telek terület

389 m²
INGATLAN LEÍRÁSA
Budapesttől mindössze 20 percre Gödöllőn, Blaha városrészen eladásra kínálok egy 732 nm-es sarok telekre tervezett ikerházat.

Az ingatlanokat teljesen elszeparálják egymástól, így garantált az intim szféra.
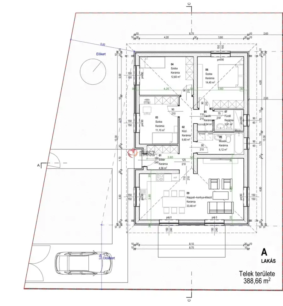
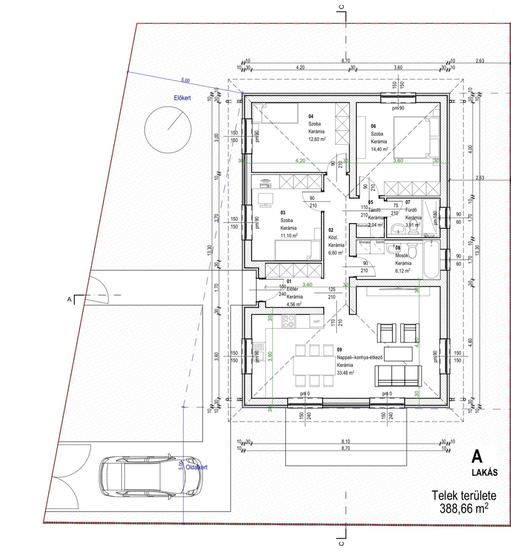
Az első „A” egy szintesre, míg a „B” házat 2 szintesre tervezték.

„A” ház jellemzői:
- 389 nm-es elszeparált kert
- tágas előtér (~6 nm, szekrény beépítésére van lehetőség)
- 3 szoba (~11 nm, ~13 nm, ~14 nm)
- nappali, konyha, étkező (~33 nm)
- mosókonyha (~6 nm, mellékhelyiség és fürdőszoba kialakítása)
- fürdőszoba (~4 nm)
- tároló (~2 nm)
- közlekedő (~7 nm)
- nagyméretű terasz ˙(~15 nm)

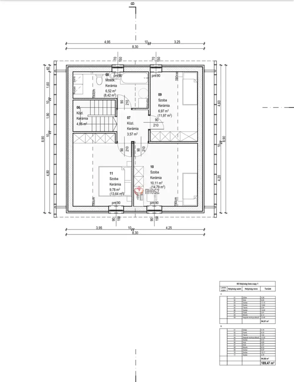
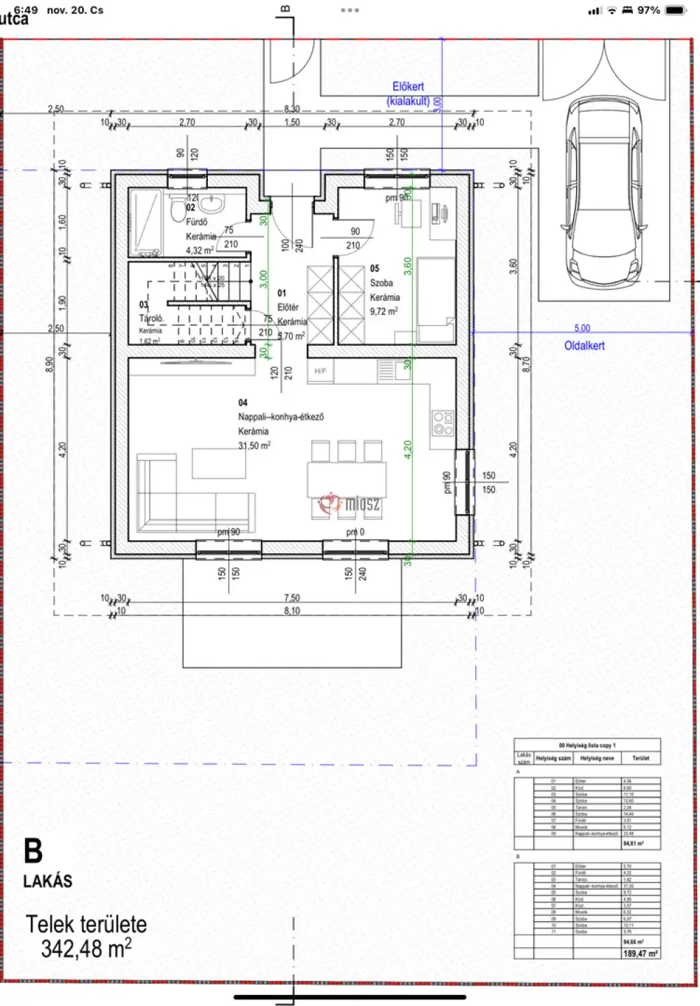
„B” ház jellemzői:
-342 nm elszeparált kert
Földszint:
- tágas előtér (~6 nm, szekrény beépítésére van lehetőség)
- 1 szoba (~9 nm)
- nappali, konyha, étkező (~32 nm)
- tároló (~2 nm)
- fürdő (~7 nm)
- terasz (~15 nm)
Emelet:
- közlekedő (~9 nm)
- 3 hálószoba (~10 nm, ~7 nm, ~10 nm)
- fürdő (~8 nm)
Mind két ingatlan minőségi anyagokból épül, energiatakarékos, amit gáz és hőszivattyús fűtéssel is lehet kérni. Részletes tájékoztatást, műszaki leírást és vállalást e-mail címre továbbítok.

Kert:
- körbe kerítve (zsaluköves kerítés)
- kis és nagykapu
- térkövezett járda és parkoló
- építési törmelékektől megtisztítva kerül átadásra

A közelben minden…
-Tesco, Lidl, Aldi, H&M éttermek és egyéb élelmiszerboltok
- Iskola, óvoda, buszmegálló, M3
Az ingatlant nagy múltú, számos referenciával rendelkező kivitelező építi, akivel gördülékeny a munka így szívből tudom ajánlani.
A házak rugalmasan megtekinthetők, hétvégén is, referenciaházak megtekintése csakis előre egyeztetett időpontokban.

Ezekkel támogatom a vásárlást:
- teljes körű hitelügyintézés
- ügyvédi háttértámogatás

Portfóliómban további igényes, új építésű ingatlanok várják. A Referens további hirdetései gombra kattintva érheti el őket.
Keressen bizalommal.

*** A kész házakról készült fotók, referenciaházakról készültek***

INGATLAN ADATAI

Ingatlan jellege
ikerház
Belső terület
95 m²
Telek terület
389 m²
Tájolás
délnyugat
Építési állapot
új
Építési mód
tégla
Szobák száma
4 szoba
Épület szintje
1.
Épült
2026
Ingatlan állapot
kívül: új
belül: új
Szigetelés
10 cm
Ablak szerkezete
3 rétegű thermoplan
Fűtés
padlófűtés
Komfort
duplakomfort
Parkolás
van fedetlen felszíni beálló
Közműállapot
csatorna: bekötve
gáz: bekötve
villany: bekötve
víz: bekötve
Energetika
A++:
TÉRKÉP

Pest megye, Gödöllő, Fecske utca

Hitelkalkulátor


KAPCSOLAT
Kómár-Benke Nikoletta
Kómár-Benke Nikoletta


+36 70 396 5533

almaestatekft@gmail.com

KAPCSOLAT
Kómár-Benke Nikoletta

+36 70 396

almaestatekft@

Az időpont kérés naptár ikonja
IDŐPONTOT KÉREK
A visszahívás kérés telefon ikonja egy azt körbe ölelő nyíllal
VISSZAHÍVÁST KÉREK
Ajánlom egy ismerősömnek ikon
AJÁNLOM EGY ISMERŐSÖMNEK
Facebook megosztás ikon
MEGOSZTÁS

KAPCSOLATFELVÉTEL

Küldés

Az üzenetet sikeresen elküldtük!
Hiba történt!
INGATLAN ADATAI

Ingatlan jellege

ikerház

Belső terület

95 m²

Telek terület

389 m²

Tájolás

délnyugat

Építési állapot

új

Építési mód

tégla

Szobák száma

4 szoba

Épület szintje

1.

Épült

2026

Ingatlan állapot

kívül: új
belül: új

Szigetelés

10 cm

Ablak szerkezete

3 rétegű thermoplan

Fűtés

padlófűtés

Komfort

duplakomfort

Parkolás

van fedetlen felszíni beálló

Közműállapot

csatorna: bekötve
gáz: bekötve
villany: bekötve
víz: bekötve

Energetika

A++:

Az időpont kérés naptár ikonja
HTML
Az időpont kérés naptár ikonja
PDF

Hasonló ingatlan hírdetések

Eladó új építésű családi ház, vagy kertes ház hirdetést keres Gödöllő területén?
Tekintse meg további ajánlatainkat!

eladó új építésű ikerház, Gödöllő

eladó új építésű ikerház

Pest megye, Gödöllő
Eladó Gödöllő kertvárosi részén, ÚJ ÉPÍTÉSŰ, CSAK A GARÁZSOKNÁL ÉRINTKEZŐ ikerház. BERUHÁZÓI ÁRON! Az építkezés most kezdődik, ősszel már új otthonába költözhet! A BELSŐ TEREK KIALAKÍTÁSA – v...
Belső terület
139 m²
Telek terület
719 m²
Szobák
4

99.9 M Ft

Új építésű!
Új építésű
eladó új építésű ikerház, Gödöllő

eladó új építésű ikerház

Pest megye, Gödöllő
Gödöllőn a központhoz közel eladásra kínálok egy 104 nm-es ÚJ ÉPÍTÉSŰ IKERHÁZAT. Az ingatlanban 3 tágas hálószoba, amerikai konyhás nappali, 1 fürdőszoba, külön mellékhelyiség is helyet kapott. ...
Belső terület
104 m²
Telek terület
200 m²
Szobák
4

115 M Ft

eladó új építésű ikerház, Gödöllő

eladó új építésű ikerház

Pest megye, Gödöllő, Belváros
Gödöllőn a Belvároshoz közel eladásra kínálok egy 135 nm-es ÚJ ÉPÍTÉSŰ IKERHÁZAT. Az ingatlanban 4 tágas hálószoba, amerikai konyhás nappali, 2 fürdőszoba, gardrób, külön mellékhelyiség is helyet k...
Belső terület
135 m²
Telek terület
350 m²
Szobák
5

129.9 M Ft

eladó családi ház, Gödöllő

eladó családi ház

Pest megye, Gödöllő, Fenyves
Eladó Gödöllő Fenyves városrészén, a Fenyvesi Nagyúton egy 472 m2-es (425 m2 belső rész + az összesen 95 m2-nyi terasz és erkély fele), nappali + 6 szobás, ÚJSZERŰ CSALÁDI VILLA, egy 2.472 m2-es gyöny...
Belső terület
472 m²
Telek terület
2472 m²
Szobák
7

490 M Ft

Pest megye - Gödöllő
Pest megye - Gödöllő
Pest megye - Gödöllő
Pest megye - Gödöllő
Pest megye - Gödöllő
Pest megye - Gödöllő
Pest megye - Gödöllő
Pest megye - Gödöllő
Pest megye - Gödöllő
Pest megye - Gödöllő
Pest megye - Gödöllő
Pest megye - Gödöllő
Pest megye - Gödöllő
Pest megye - Gödöllő
Pest megye - Gödöllő
Pest megye - Gödöllő
Pest megye - Gödöllő
Pest megye - Gödöllő
Pest megye - Gödöllő