Eladó új építésű ikerház - Budapest, X. kerület

KAPCSOLAT
Kiss Jutka


+36 20 334

arenaingatlanok@

Az időpont kérés naptár ikonja
IDŐPONTOT KÉREK
A visszahívás kérés telefon ikonja egy azt körbe ölelő nyíllal
VISSZAHÍVÁST KÉREK
Ajánlom egy ismerősömnek ikon
AJÁNLOM EGY ISMERŐSÖMNEK
Facebook megosztás ikon
MEGOSZTÁS

KAPCSOLATFELVÉTEL

Küldés

Az üzenetet sikeresen elküldtük!
Hiba történt!
INGATLAN ADATAI

Ingatlan jellege

ikerház

Belső terület

130 m²

Telek terület

0 m²

Tájolás

délnyugat

Építési állapot

új

Építési mód

tégla

Szobák száma

5+1 félszoba

Terasz

20 m²

Épület szintje

2.

Épült

2026

Ingatlan állapot

kívül: új
belül: új

Klíma

előkészítve

Szigetelés

15 cm

Fűtés

gázkazán

Komfort

duplakomfort

Parkolás

van önálló garázs

Közműállapot

csatorna: bekötve
gáz: bekötve
villany: bekötve
víz: bekötve

Energetika

nincs megadva

Az időpont kérés naptár ikonja
HTML
Az időpont kérés naptár ikonja
PDF
Eladó új építésű ikerház
Ingatlan azonosító:
1370_ar

Budapest, X. kerület,

Irányár

179 M Ft
(1.38 M Ft/㎡)

Szobák

5+1 félszoba

Terület

130 m²
INGATLAN LEÍRÁSA
IKERFÉL CSALÁDI HÁZ, MOST KEZDŐDŐ ÉPÍTKEZÉSSEL, GARÁZZSAL + GÉPKOCSI BEÁLLÁSI LEHETŐSÉGGEL, BERUHÁZÓI ÁRON, ÉPÍTÉSZMÉRNÖK KIVITELEZÉSSEL, KIZÁRÓLAG IRODÁNK KÍNÁLATÁBAN!

X. ker. FELSŐ RÁKOSON, ALSÓRÁKOS HATÁRÁN, ÁRKÁD, SUGÁR ÜZLETKÖZPONT, HÉV, METRÓ 5 PERCRE, KERTVÁROSI RÉSZÉN, KIFEJEZETTEN JÓ KÖZLEKEDÉSNÉL, mégis szuper csendes mellékutcában, BERUHÁZÓI ÁRON, RENDKÍVÜL IGÉNYES, RENGETEG REFERENCIA MUNKÁVAL RENDELKEZŐ ÉPÍTÉSZMÉRNÖK KIVITELEZŐTŐL, 130 m²-es + terasz + erkély amerikai konyhás nappali + 4hálószobás, DUPLA KOMFORTOS, NAPFÉNYBEN FÜRDŐ, D-D-NY-I FEKVÉSŰ TERASSZAL, 504m2-es saját leválasztott kerttel eladó.

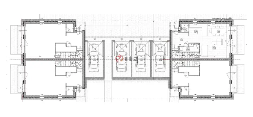
Elosztás:
Földszinten amerikai konyhás nappali,(34 m²) fürdőszoba,(5 m²) előtér,( 5 m²) + háztartási helyiség + garázs(18m²)
Emeleten: 4 hálószoba a szobák 15 m² 12 m² 12 m² 9m²-esek, közlekedő,( 5,09 m²) fürdőszoba,( 5 m²) lépcsőház.

MŰSZAKI BELTARTALOM:
Falazat födémek: DRY FIX 30-as Porotherm tégla 15 cm GRAFITOS hőszigetelő, a földszint felett 22 cm vastag monolit vasbeton födém kerül kivitelezésre
GÉPÉSZET: a lakás padlófűtését és használati meleg vizet IMMERGAS HŐTÁROLÓS kazán biztosítja .
Nyílászárók: műanyag nyílászárók 3 rétegű üvegezéssel(7 légkamrás)fehér színben.
- NAPELEME, ELŐKÉSZÍTVE
- KLÍMA ELŐKÉSZÍTÉS (BECSÖVEZÉS, ÁRAM, KONDENZÁCIÓS VÍZ ELVEZETÉSE)
- RIASZTÓ ELŐKÉSZÍTÉS
- HIDEG, MELEG BURKOLATOK, SZANITEREK, MOSDÓK A MEGADOTT MŰSZAKI TARTALOM SZERINT
- ELEKTROMOS KAPU
- Az utcai kerítés ZÁRT RENDSZERREL, ELEKTROMOS KAPU NÍVÓ KERÍTÉSELEMMEL KERÜL KIALAKÍTÁSRA

RENGETEG REFERENCIA MUNKÁK megtekinthetők.

Irodánk ÚJ ÉPÍTÉSŰ ingatlanok specialistája, felkészült értékesítőkkel! Új építésű ingatlanjainkat BERUHÁZÓI ÁRON értékesítjük!
Jogi háttérrel (kedvező díjazással) és az egyik legjobb, bank semleges HITELKÖZVETÍTŐVEL segítjük vásárlását.

INGATLAN ADATAI

Ingatlan jellege
ikerház
Belső terület
130 m²
Telek terület
0 m²
Tájolás
délnyugat
Építési állapot
új
Építési mód
tégla
Szobák száma
5+1 félszoba
Terasz
20 m²
Épület szintje
2.
Épült
2026
Ingatlan állapot
kívül: új
belül: új
Klíma
előkészítve
Szigetelés
15 cm
Fűtés
gázkazán
Komfort
duplakomfort
Parkolás
van önálló garázs
Közműállapot
csatorna: bekötve
gáz: bekötve
villany: bekötve
víz: bekötve
Energetika
nincs megadva
TÉRKÉP

Budapest, X. kerület,

Hitelkalkulátor


KAPCSOLAT
Kiss Jutka
Kiss Jutka


+36 20 334 3328

arenaingatlanok@gmail.com

KAPCSOLAT
Kiss Jutka

+36 20 334

arenaingatlanok@

Az időpont kérés naptár ikonja
IDŐPONTOT KÉREK
A visszahívás kérés telefon ikonja egy azt körbe ölelő nyíllal
VISSZAHÍVÁST KÉREK
Ajánlom egy ismerősömnek ikon
AJÁNLOM EGY ISMERŐSÖMNEK
Facebook megosztás ikon
MEGOSZTÁS

KAPCSOLATFELVÉTEL

Küldés

Az üzenetet sikeresen elküldtük!
Hiba történt!
INGATLAN ADATAI

Ingatlan jellege

ikerház

Belső terület

130 m²

Telek terület

0 m²

Tájolás

délnyugat

Építési állapot

új

Építési mód

tégla

Szobák száma

5+1 félszoba

Terasz

20 m²

Épület szintje

2.

Épült

2026

Ingatlan állapot

kívül: új
belül: új

Klíma

előkészítve

Szigetelés

15 cm

Fűtés

gázkazán

Komfort

duplakomfort

Parkolás

van önálló garázs

Közműállapot

csatorna: bekötve
gáz: bekötve
villany: bekötve
víz: bekötve

Energetika

nincs megadva

Az időpont kérés naptár ikonja
HTML
Az időpont kérés naptár ikonja
PDF

Hasonló ingatlan hírdetések

Eladó új építésű családi ház, vagy kertes ház hirdetést keres Budapesten a X. kerületben?
Jelenleg nincsenek hasonló aktuális ajánlatok Felsőrákos településen.
Tekintse meg további Budapest, X. kerületi ajánlatainkat !

Budapest, X. kerület - Felsőrákos
Budapest, X. kerület - Felsőrákos
Budapest, X. kerület - Felsőrákos
Budapest, X. kerület - Felsőrákos