KAPCSOLATFELVÉTEL
Ingatlan jellege
családi ház
Belső terület
105 m²
Telek terület
795 m²
Tájolás
délkelet
Építési állapot
új
Építési mód
tégla
Szobák száma
4 szoba
Terasz
29 m²
Épület szintje
földszintes.
Épült
2025
Ingatlan állapot
kívül: kitűnő
belül: kitűnő
Klíma
előkészítve
Szigetelés
15 cm
Ablak szerkezete
3 rétegű thermoplan
Fűtés
cirko
Komfort
duplakomfort
Parkolás
van fedett felszíni beálló
Közműállapot
csatorna: bekötve
gáz: bekötve
villany: bekötve
víz: bekötve
Energetika
A 2024:
Pest megye, Vácegres
Irányár
(619.05 E Ft/㎡)
Szobák
Terület
Telek terület
Vácegresen, aszfaltos út melletti 795 nm-es telekre épülő egyszintes, nettó 105 nm-es, nappali + 3 szobás, dupla komfortos, 29 nm-es hátsó FEDETT TERASSZAL és 18 nm-es első FEDETT terasszal, felszíni gépkocsi beállóval rendelkező, DK-i fekvésű családi ház eladó.
Referencia munkák a közeli térségben megtekinthetők!
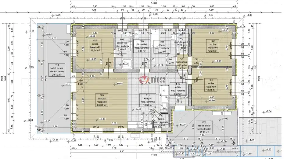
Elosztása:
fedett előtér (terasz) 18,22 nm
előszoba 5,22 nm
közlekedő 1,30 nm
WC 2,20 nm
fürdő 7,92 nm
fürdő 5,40 nm
házt.h. 5,40 nm
kamra 1,45 nm
konyha-étkező-nappali 39,33 nm
szoba 12,24 nm
szoba 12,24 nm
szoba 12,24 nm
fedett terasz 29,40 nm
Műszaki leírás röviden:
*teherhordó fal PTH 30-as tégla
*belső válaszfalak 10 cm PTH
*15 cm-es homlokzati szigetelés szigetelés
*nyílászárók műanyag 3 rétegű, 5 légkamrás kivitel
*betongerendás födém
*Bramac tetőcserép
*fűtése kondenzációs gázkazán, padlófűtéssel (hőszivattyú megbeszélés kérdése)
*3 db klíma kiállás
*szaniterek 300.000 Ft értékben
*hideg-, meleg burkolatok 5.000 Ft értékben
*beltéri ajtók 50.000 Ft értékben
*utcafronti kerítés zsalukő erősített fa lécezés
*átadás 2026. I-II. név
*jelenleg a telek tekinthető meg
*fotókon ugyanilyen referencia ház is szerepel.
Tömegközlekedés: 453, 318 busz (Újpest-Városkapu felé) gyalogosan 10 percre, Galgamácsa vasútállomás (S77, S780) autóval 7 percre.
Hiteligény esetén az ügyintézést szakszerűen, gyorsan és DÍJMENTESEN biztosítjuk ügyfeleink számára, így a legkedvezőbb megoldást tudjuk kínálni az ingatlan megvásárlásához.
Várom megtisztelő érdeklődését, akár hétvégén is!
belül: kitűnő
gáz: bekötve
villany: bekötve
víz: bekötve
Pest megye, Vácegres
Hitelkalkulátor

+36 30 924 5445,
turzobettina@gmail.com
KAPCSOLATFELVÉTEL
Ingatlan jellege
családi ház
Belső terület
105 m²
Telek terület
795 m²
Tájolás
délkelet
Építési állapot
új
Építési mód
tégla
Szobák száma
4 szoba
Terasz
29 m²
Épület szintje
földszintes.
Épült
2025
Ingatlan állapot
kívül: kitűnő
belül: kitűnő
Klíma
előkészítve
Szigetelés
15 cm
Ablak szerkezete
3 rétegű thermoplan
Fűtés
cirko
Komfort
duplakomfort
Parkolás
van fedett felszíni beálló
Közműállapot
csatorna: bekötve
gáz: bekötve
villany: bekötve
víz: bekötve
Energetika
A 2024: