Eladó új építésű ház - Nyírtura

garázzsal
Garázzsal
KAPCSOLAT
Leviczki Péter


+36 30 693

info@

Az időpont kérés naptár ikonja
IDŐPONTOT KÉREK
A visszahívás kérés telefon ikonja egy azt körbe ölelő nyíllal
VISSZAHÍVÁST KÉREK
Ajánlom egy ismerősömnek ikon
AJÁNLOM EGY ISMERŐSÖMNEK
Facebook megosztás ikon
MEGOSZTÁS

KAPCSOLATFELVÉTEL

Küldés

Az üzenetet sikeresen elküldtük!
Hiba történt!
INGATLAN ADATAI

Ingatlan jellege

családi ház

Belső terület

96 m²

Telek terület

900 m²

Tájolás

dél, kelet, nyugat

Építési állapot

új

Építési mód

tégla

Szobák száma

5 szoba

Épület szintje

földszintes.

Épült

2026

Ingatlan állapot

kívül: új
belül: új

Szigetelés

15 cm

Ablak szerkezete

3 rétegű thermoplan

Fűtés

cirko

Komfort

összkomfort

Parkolás

van önálló garázs

Közműállapot

csatorna: bekötve
gáz: bekötve
villany: bekötve
víz: bekötve

Energetika

nincs megadva

Az időpont kérés naptár ikonja
HTML
Az időpont kérés naptár ikonja
PDF
Eladó új építésű ház
Ingatlan azonosító:
833_ahi

Szabolcs-Szatmár-Bereg megye, Nyírtura, Liliom utca

Irányár

58.5 M Ft
(609.38 E Ft/㎡)

Szobák

5 szoba

Terület

96 m²

Telek terület

900 m²
INGATLAN LEÍRÁSA
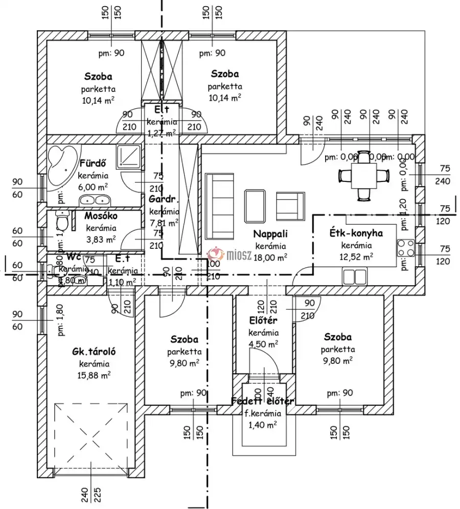
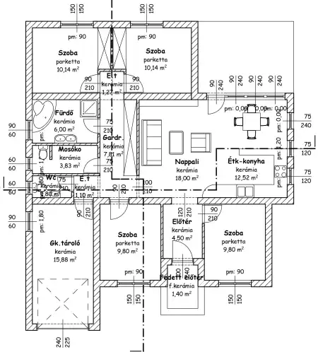
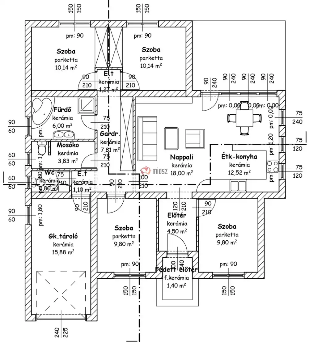
Nyíregyházától 10 km-re új építésű lakóparkban különálló családi ház megrendelhető.

Jellemzők:
tégla építésű, cseréptetővel

4 hálószoba + nappali
1 fürdő + 2 wc
1 állásos garázzsal

Természetesen egyedi elképzelések is megvalósíthatóak!

Egyedi lehetőségek:
Minden kedvezmény igénybe vehető ( CSOK, Otthon Start )!
A feltüntetett vételárból még 5 M Ft áfa visszaigényelhető!
Lakás beszámítás lehetséges!

Rendeteg referenciával rendelkező kivitelező!

További információkért keressen bizalommal!

INGATLAN ADATAI

Ingatlan jellege
családi ház
Belső terület
96 m²
Telek terület
900 m²
Tájolás
dél, kelet, nyugat
Építési állapot
új
Építési mód
tégla
Szobák száma
5 szoba
Épület szintje
földszintes.
Épült
2026
Ingatlan állapot
kívül: új
belül: új
Szigetelés
15 cm
Ablak szerkezete
3 rétegű thermoplan
Fűtés
cirko
Komfort
összkomfort
Parkolás
van önálló garázs
Közműállapot
csatorna: bekötve
gáz: bekötve
villany: bekötve
víz: bekötve
Energetika
nincs megadva
TÉRKÉP

Szabolcs-Szatmár-Bereg megye, Nyírtura, Liliom utca

Hitelkalkulátor


KAPCSOLAT
Leviczki Péter
Leviczki Péter


+36 30 693 2699

info@almaimhaza.hu

KAPCSOLAT
Leviczki Péter

+36 30 693

info@

Az időpont kérés naptár ikonja
IDŐPONTOT KÉREK
A visszahívás kérés telefon ikonja egy azt körbe ölelő nyíllal
VISSZAHÍVÁST KÉREK
Ajánlom egy ismerősömnek ikon
AJÁNLOM EGY ISMERŐSÖMNEK
Facebook megosztás ikon
MEGOSZTÁS

KAPCSOLATFELVÉTEL

Küldés

Az üzenetet sikeresen elküldtük!
Hiba történt!
INGATLAN ADATAI

Ingatlan jellege

családi ház

Belső terület

96 m²

Telek terület

900 m²

Tájolás

dél, kelet, nyugat

Építési állapot

új

Építési mód

tégla

Szobák száma

5 szoba

Épület szintje

földszintes.

Épült

2026

Ingatlan állapot

kívül: új
belül: új

Szigetelés

15 cm

Ablak szerkezete

3 rétegű thermoplan

Fűtés

cirko

Komfort

összkomfort

Parkolás

van önálló garázs

Közműállapot

csatorna: bekötve
gáz: bekötve
villany: bekötve
víz: bekötve

Energetika

nincs megadva

Az időpont kérés naptár ikonja
HTML
Az időpont kérés naptár ikonja
PDF

Hasonló ingatlan hírdetések

Eladó új építésű családi ház, vagy kertes ház hirdetést keres Nyírtura területén?
Jelenleg nincsenek hasonló aktuális ajánlatok Nyírtura településen.
Tekintse meg további Szabolcs-Szatmár-Bereg megyei ajánlatainkat !

eladó családi ház, Nyíregyháza

eladó családi ház

Szabolcs-Szatmár-Bereg megye, Nyíregyháza, Újkistelekiszőlő
ELADÁS FOLYAMATBAN!! Nyíregyháza-Újkistelekiszőlő frekventált és kedvelt utcájában, tégla falazatú ( B-30-as, szigetelt 15 cm. ) kb.110 nm-es, nappali+konyha+étkező + 2 hálószobás ( mindegyik kül...
Belső terület
110 m²
Telek terület
846 m²
Szobák
2

62.3 M Ft

eladás folyamatban!
Eladás folyamatban
eladó családi ház, Nyíregyháza

eladó családi ház

Szabolcs-Szatmár-Bereg megye, Nyíregyháza, Oros
Nyíregyháza – Oros övezetében, új építésű családi házas lakóparkban eladó egy 2022-ben épült önálló családi ház. A családi ház 228 m2-es, a telek mérete 993 m2. Beosztása: - nappali – konyha - ...
Belső terület
228 m²
Telek terület
993 m²
Szobák
4

199 M Ft

Újszerű!
Újszerű
eladó új építésű családi ház, Nyíregyháza

eladó új építésű családi ház

Szabolcs-Szatmár-Bereg megye, Nyíregyháza, Borbánya
Nyíregyháza-Borbánya kedvelt és csendes utcájában, tégla ( Porotherm ) falazatú ( 15 cm.szigeteléssel ), 123 nm-es, ( nettó ) nappali+konyha+étkező+ 3 szobás szerkezetkész ( kb.80 %-os ) családi ház ...
Belső terület
123 m²
Telek terület
621 m²
Szobák
3

71.99 M Ft

eladó családi ház, Nyíregyháza

eladó családi ház

Szabolcs-Szatmár-Bereg megye, Nyíregyháza, Borbánya
ELADÁS FOLYAMATBAN!! Nyíregyháza-Borbánya egyik frekventált utcájában ( az Alma utcából nyílik), eladó egy kb.115 nm-es, 3 szobás( külön nyílók )+ nappali, tégla ( Porotherm 30-as, szigetelt 10 cm....
Belső terület
115 m²
Telek terület
1153 m²
Szobák
3

85 M Ft

eladás folyamatban!
Eladás folyamatban
eladó új építésű ikerház, Nyíregyháza

eladó új építésű ikerház

Szabolcs-Szatmár-Bereg megye, Nyíregyháza, Ókistelekiszőlő
Nyíregyháza-Ókistelekiszőlő csendes övezetében, új építésű, 112,83 nm-es( nettó) illetve 94,21 nm.-es( nettó) hasznos alapterületű, ikerházi lakások eladók! Az 1.-es számú ikerházi lakás( 112,83 n...
Belső terület
112 m²
Telek terület
948 m²
Szobák
2

65 M Ft

Új építésű!
Új építésű
eladó ikerház, Nyíregyháza

eladó ikerház

Nyírszőlős csendes részén, madárcsicsergős környezetben újszerű ikerház eladó!

Szabolcs-Szatmár-Bereg megye, Nyíregyháza, Nyírszőlős
Nyíregyháza, Nyírszőlős övezetében, csendes környezetben eladó egy 2022-ben épült, körülbelül 124 négyzetméteres, szintes, lapos tetős, nappali + 4 szobás családi ikerház. A ház elosztása: A fö...
Belső terület
124 m²
Telek terület
450 m²
Szobák
5

65 M Ft

Újszerű!
Újszerű
eladó új építésű ikerház, Nyíregyháza

eladó új építésű ikerház

Szabolcs-Szatmár-Bereg megye, Nyíregyháza, Kertváros
Nyíregyháza - Ságvári kertváros csendes részén új ikerház egyik fele még keresi gazdáját! Jellemzői: - Tégla építésű, cseréptetős - 3 hálószoba + nappali - nagy terasz - tökéletes méretű pihe...
Belső terület
80 m²
Telek terület
400 m²
Szobák
4

66 M Ft

CSOK igényelhető
CSOK igényelhető
eladó új építésű családi ház, Nyíregyháza

eladó új építésű családi ház

Szabolcs-Szatmár-Bereg megye, Nyíregyháza, Nyírszőlős
Nyíregyháza - Nyírszőlős központhoz közel különálló családi ház leköthető! Jellemzői: 50 cm-es viablokk főfalak az egész ingatlanban padlófűtés a hűtést - fűtést - melegvizet hőszivattyú bizto...
Belső terület
173 m²
Telek terület
1080 m²
Szobák
5

130 M Ft

Szabolcs-Szatmár-Bereg megye - Nyírtura
Szabolcs-Szatmár-Bereg megye - Nyírtura