KAPCSOLATFELVÉTEL
Ingatlan jellege
családi ház
Belső terület
126 m²
Telek terület
955 m²
Tájolás
délnyugat
Építési állapot
új
Építési mód
tégla
Szobák száma
5 szoba
Terasz
19 m²
Épület szintje
1.
Épült
2025
Ingatlan állapot
kívül: új
belül: új
Klíma
előkészítve
Szigetelés
15 cm
Ablak szerkezete
3 rétegű thermoplan
Fűtés
gázkazán
Komfort
duplakomfort
Parkolás
van fedetlen felszíni beálló
Közműállapot
csatorna: bekötve
gáz: bekötve
villany: bekötve
víz: bekötve
Energetika
nincs megadva
Pest megye, Erdőkertes
Irányár
(753.17 E Ft/㎡)
Szobák
Terület
Telek terület
BERUHÁZÓI ÁRON!
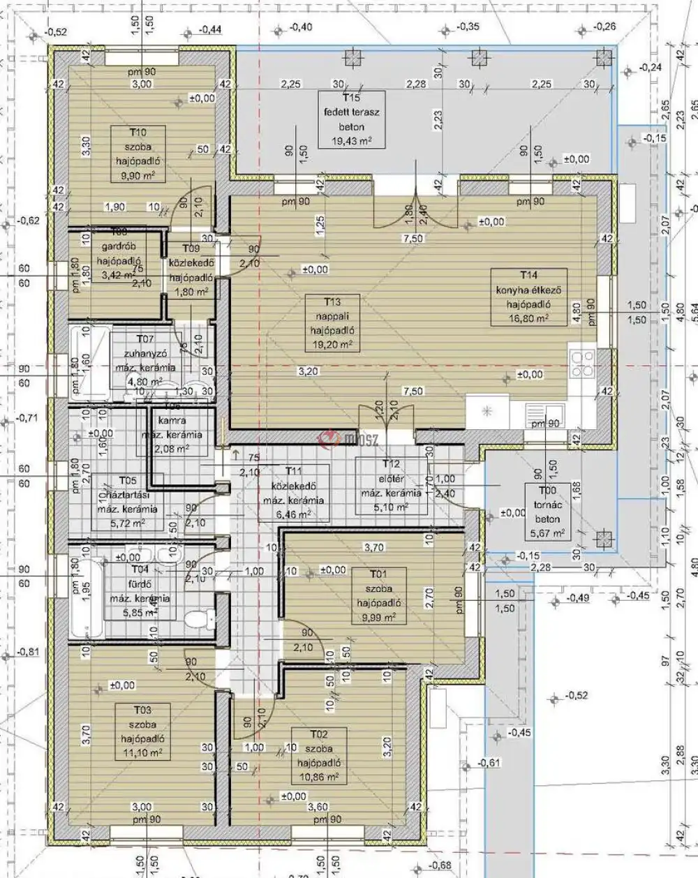
A földszintes, nettó 113 nm-es családi ház Erdőkertes Topolyos részén, 955 nm-es telken fog épülni.
Jelenleg a telek tekinthető meg, így a BELSŐ TEREK KIALAKÍTÁSA – válaszfalak elhelyezése – igény szerint MÓDOSÍTHATÓ!
A remek térszervezésű ingatlan minden igény kielégít:
- tágas amerikai konyhás nappali terasz (19 nm) kapcsolattal, 4 hálószoba, gardrób, 2 fürdőszoba, háztartási helyiség, kamra, előtér, közlekedő.
Az épület korszerű, a mai kor igényeinek megfelelő minőségi anyagokból és technológiával készül:
- a teherhordó falak 30-as Porotherm téglából, 15 cm-es hőszigeteléssel,
- betongerendás födém,
- 3 rétegű, hőszigetelt üvegezésű műanyag nyílászárók,
- fűtés gázkazán, padlófűtéssel, igény esetén – értékegyeztetéssel – hőszivattyús fűtés,
- 3 db klíma előkészítése,
- választható burkolatok, szaniterek, belső ajtók.
A vételár tartalmazza az utcafronti kerítést is.
Az alaprajz tájékoztató jellegű!
Az ingatlan aszfaltos utcában fog épülni, buszmegállótól gyalogosan pár perc sétányira.
Ideális lehetőséget biztosít mindazok számára, akik a város közelségét és a nyugodt, zöld környezetet egyszerre szeretnék élvezni.
Hívjon a részletekért, a részletes műszaki tartalomért.
Irodánk ÚJ ÉPÍTÉSŰ ingatlanok specialistája, felkészült értékesítőkkel!
Jogi háttérrel (kedvező díjazással) és az egyik legjobb, bank semleges HITELKÖZVETÍTŐVEL segítjük vásárlását.
Hitelszakértőnk teljes körű ügyintézéssel áll Vevőink rendelkezésére, legyen szó OTTHON START, CSOK+, BABAVÁRÓ vagy a legjobb piaci hitelről.
Új építésű ingatlanjainkat BERUHÁZÓI ÁRON értékesítjük!
Amennyiben értékesíteni kívánja ingatlanát, irodánk egyedi, kedvező ajánlattal áll rendelkezésére!
Erdőkertes Veresegyház közvetlen szomszédságában fekvő, dinamikusan fejlődő, kellemes, nyugodt település. A mindennapi élethez szükséges bevásárlási lehetőség, iskola, óvoda, orvosi rendelő, gyógyszertár mind megtalálható, de a jó ellátottságot biztosítja még Veresegyház közelsége, ahol számos bevásárlási és kikapcsolódási lehetőség (üzletházak, piac, színház, horgásztó, medvepark, termálfürdő stb.) található.
belül: új
gáz: bekötve
villany: bekötve
víz: bekötve
Pest megye, Erdőkertes
Hitelkalkulátor
+36 20 334 3328
arenaingatlanok@gmail.com
KAPCSOLATFELVÉTEL
Ingatlan jellege
családi ház
Belső terület
126 m²
Telek terület
955 m²
Tájolás
délnyugat
Építési állapot
új
Építési mód
tégla
Szobák száma
5 szoba
Terasz
19 m²
Épület szintje
1.
Épült
2025
Ingatlan állapot
kívül: új
belül: új
Klíma
előkészítve
Szigetelés
15 cm
Ablak szerkezete
3 rétegű thermoplan
Fűtés
gázkazán
Komfort
duplakomfort
Parkolás
van fedetlen felszíni beálló
Közműállapot
csatorna: bekötve
gáz: bekötve
villany: bekötve
víz: bekötve
Energetika
nincs megadva