Eladó új építésű ház - Budapest, XVI. kerület

Új építésű!
Új építésű
KAPCSOLAT
Török Ottilia


+36 30 962

torok.ottilia.visitors@

Az időpont kérés naptár ikonja
IDŐPONTOT KÉREK
A visszahívás kérés telefon ikonja egy azt körbe ölelő nyíllal
VISSZAHÍVÁST KÉREK
Ajánlom egy ismerősömnek ikon
AJÁNLOM EGY ISMERŐSÖMNEK
Facebook megosztás ikon
MEGOSZTÁS

KAPCSOLATFELVÉTEL

Küldés

Az üzenetet sikeresen elküldtük!
Hiba történt!
INGATLAN ADATAI

Ingatlan jellege

családi ház

Belső terület

162 m²

Telek terület

1075 m²

Tájolás

délkelet

Építési állapot

új

Építési mód

tégla

Szobák száma

5 szoba

Terasz

23 m²

Épület szintje

1.

Épült

2026

Ingatlan állapot

kívül: új
belül: új

Szigetelés

15 cm

Ablak szerkezete

3 rétegű thermoplan

Fűtés

hőszivattyús

Komfort

duplakomfort

Parkolás

van önálló garázs

Közműállapot

csatorna: bekötve
gáz: nincs
villany: bekötve
víz: bekötve

Energetika

nincs megadva

Az időpont kérés naptár ikonja
HTML
Az időpont kérés naptár ikonja
PDF
Eladó új építésű ház
Ingatlan azonosító:
1372_ar

Budapest, XVI. kerület,

Irányár

253.5 M Ft
(1.56 M Ft/㎡)

Szobák

5 szoba

Terület

162 m²

Telek terület

1075 m²
INGATLAN LEÍRÁSA
ÚJ ÉPÍTÉSŰ, EGYSZINTES CSALÁDI HÁZ GARÁZZSAL + GÉPKOCSI BEÁLLÁSI LEHETŐSÉGGEL, BERUHÁZÓI ÁRON!

XVI. ker. RÁKOSSZENTMIHÁLY KERTVÁROSI RÉSZÉN, KIFEJEZETTEN JÓ KÖZLEKEDÉSNÉL, mégis szuper csendes mellékutcában, BERUHÁZÓI ÁRON, REFERENCIA MUNKÁVAL RENDELKEZŐ KIVITELEZŐTŐL, 150m²-es (nettó) + teraszok, MAGAS MŰSZAKI MINŐSÉGŰ, AMERIKAI KONYHÁS NAPPALI + 4 hálószobás, LUXUS KOMFORTOS, NAPFÉNYBEN FÜRDŐ, D-NY-I FEKVÉSŰ TERASSZAL, 1075 m2-es kerttel, 2026. ÉV VÉGI ÁTADÁSSAL.

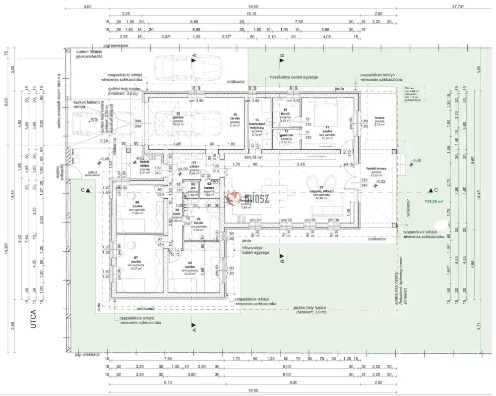
Elosztás:
Földszint: amerikai konyhás nappali (43m²) +4 hálószoba, 13,37m² 13,14m² 12m² 11m²-esek, fürdőszoba, 8m² szülői hálószobához kapcsolódó fürdőszoba, (4m²) + gardrób (3m²) közlekedő (5m²), előtér (7m²) + háztartási helyiség (6m2), kamra (2m²), vendég WC kézmosóval (1,20m²) + garázs + tároló (24 m² garázs, hossza 6m).


MŰSZAKI TARTALOM:
HOMLOKZAT 15 cm hőszigetelő, teherhordó falak POROTHERM, LEIER, N+F falazó elemek, 30 cm vastagságban.
FÖDÉM: előre gyártott E-gerendás födém, EB60/19 béléstesttel, méretezés és terv szerint.
TETŐ: a tető Romai Novo antracit színű cserépfedést kap. A tetőlécezés alá hálóerősített páraáteresztő alátétfólia kerül.
VÁLASZFALAK: válaszfalak 10 cm vastag POROTHERM , LEIER , N+F kerámia válaszfalból készülnek.
GÉPÉSZET: a fűtést hőszivattyús rendszer biztosítja , CONNECT, ATLANTIC , AUX EVO típusú bruttó: 1,8 millióFt értékben (minden helységében padlófűtés)
Az ingatlan 1X32A -es órával felszerelt. A szabályoknak megfelelő érintés védelem készül. 1 db 32A minden napszakban. A 1×32A kibővítése 3×16A áramerősségre 72 000 Ft bruttó plusz költség. Az áramellátás bővíthető H tarifával, FELÁR ELLENÉBEN.
Nyílászárók: az ablakok műanyag szerkezetűek, (bukó-nyíló, illetve fix kialakítással) 3 rétegű üveggel, kívül antracit belül fehér színben. Az ablakok redőnytok beépítése az elektromos redőny fogadására előkészített kivitelben készülnek.
HIDEG, MELEG BURKOLATOK, SZANITEREK, MOSDÓK A MEGADOTT MŰSZAKI TARTALOM SZERINT.
RIASZTÓ: alapcsövezése.
INTERNET: a nappaliban internet csatlakozási lehetőség lesz kialakítva.

ÉPÍTKEZÉS KEZDETE: 2026.ÁPRILIS

Megtekintés rugalmasan kezelve, egyeztetett időpontban.


INGATLAN ADATAI

Ingatlan jellege
családi ház
Belső terület
162 m²
Telek terület
1075 m²
Tájolás
délkelet
Építési állapot
új
Építési mód
tégla
Szobák száma
5 szoba
Terasz
23 m²
Épület szintje
1.
Épült
2026
Ingatlan állapot
kívül: új
belül: új
Szigetelés
15 cm
Ablak szerkezete
3 rétegű thermoplan
Fűtés
hőszivattyús
Komfort
duplakomfort
Parkolás
van önálló garázs
Közműállapot
csatorna: bekötve
gáz: nincs
villany: bekötve
víz: bekötve
Energetika
nincs megadva
TÉRKÉP

Budapest, XVI. kerület,

Hitelkalkulátor


KAPCSOLAT
Török Ottilia
Török Ottilia


+36 30 962 8907

torok.ottilia.visitors@gmail.com

KAPCSOLAT
Török Ottilia

+36 30 962

torok.ottilia.visitors@

Az időpont kérés naptár ikonja
IDŐPONTOT KÉREK
A visszahívás kérés telefon ikonja egy azt körbe ölelő nyíllal
VISSZAHÍVÁST KÉREK
Ajánlom egy ismerősömnek ikon
AJÁNLOM EGY ISMERŐSÖMNEK
Facebook megosztás ikon
MEGOSZTÁS

KAPCSOLATFELVÉTEL

Küldés

Az üzenetet sikeresen elküldtük!
Hiba történt!
INGATLAN ADATAI

Ingatlan jellege

családi ház

Belső terület

162 m²

Telek terület

1075 m²

Tájolás

délkelet

Építési állapot

új

Építési mód

tégla

Szobák száma

5 szoba

Terasz

23 m²

Épület szintje

1.

Épült

2026

Ingatlan állapot

kívül: új
belül: új

Szigetelés

15 cm

Ablak szerkezete

3 rétegű thermoplan

Fűtés

hőszivattyús

Komfort

duplakomfort

Parkolás

van önálló garázs

Közműállapot

csatorna: bekötve
gáz: nincs
villany: bekötve
víz: bekötve

Energetika

nincs megadva

Az időpont kérés naptár ikonja
HTML
Az időpont kérés naptár ikonja
PDF

Hasonló ingatlan hírdetések

Eladó új építésű családi ház, vagy kertes ház hirdetést keres Budapesten a XVI. kerületben?
Tekintse meg további ajánlatainkat!

eladó új építésű családi ház, Budapest, XVI. kerület

eladó új építésű családi ház

Budapest, XVI. kerület, Árpádföld
Eladó a XVI. kerületben, Rákosszentmihályon, ÚJ ÉPÍTÉSŰ, ENERGIATAKARÉKOS családi ház. BERUHÁZÓI ÁRON! Eladó Rákosszentmihályon, kertvárosi környezetben, egy bruttó 125 nm-es, új építésű családi...
Belső terület
125 m²
Telek terület
500 m²
Szobák
4

217.9 M Ft

Új építésű!
Új építésű
eladó új építésű családi ház, Budapest, XVI. kerület

eladó új építésű családi ház

Budapest, XVI. kerület, Rákosszentmihály
Eladó ÚJ ÉPÍTÉSŰ, ENERGIATAKARÉKOS, MINDEN IGÉNYT KIELÉGÍTŐ CSALÁDI HÁZ a XVI. kerületben, Rákosszentmihályon! BERUHÁZÓI ÁRON! Eladó a XVI. kerületben, Rákosszentmihályon, kitűnő térszervezésű, ...
Belső terület
195 m²
Telek terület
778 m²
Szobák
5

295 M Ft

Új építésű!
Új építésű
eladó új építésű családi ház, Budapest, XVI. kerület

eladó új építésű családi ház

Budapest, XVI. kerület, Rákosszentmihály
Eladó ÚJ ÉPÍTÉSŰ családi ház a XVI. kerületben, Rákosszentmihályon! BERUHÁZÓI ÁRON! Magas műszaki tartalom, minőségi kivitelezés! Ha szeretne egy modern, kényelmes otthonban élni családjával ...
Belső terület
194 m²
Telek terület
778 m²
Szobák
4

249.99 M Ft

Új építésű!
Új építésű
eladó új építésű családi ház, Budapest, XVI. kerület

eladó új építésű családi ház

Budapest, XVI. kerület, Árpádföld
Kezdje az új otthona megteremtését fix 3%-os állami támogatott kamattal! OTTHON START PROGRAMBAN IS MEGVÁSÁROLHATÓ! 10% önrész, max 50 millió Ft hitel 3% kamattal! ➡️Újépítésű családi ház eladó...
Belső terület
104 m²
Telek terület
450 m²
Szobák
4

188.9 M Ft

CSOK igényelhető
CSOK igényelhető
eladó új építésű családi ház, Budapest, XVI. kerület

eladó új építésű családi ház

Budapest, XVI. kerület, Sashalom
Eladó ÚJ ÉPÍTÉSŰ, energiatakarékos, HAMAROSAN KÖLTÖZHETŐ családi ház a XVI. kerületben Sashalmon! BERUHÁZÓI ÁRON! Eladó A XVI. kerületben Sashalmon, ÚJ ÉPÍTÉSŰ, bruttó 146 nm, nettó 118 nm-es mi...
Belső terület
146 m²
Telek terület
586 m²
Szobák
4

229.9 M Ft

Új építésű!
Új építésű
eladó új építésű családi ház, Budapest, XVI. kerület

eladó új építésű családi ház

Budapest, XVI. kerület, Rákosszentmihály
ÚJ ÉPÍTÉSŰ, HŐSZIVATTYÚS, MENNYEZETI HŰTÉS- FŰTÉS SZELLŐZTETŐRENDSZERREL! 2025.SZEPTEMBERBEN KEZDŐDŐ ÉPÍTKEZÉSSEL, GÉPKOCSI BEÁLLÁSI LEHETŐSÉGGEL, BERUHÁZÓI ÁRON, NAGY MÚLTTAL RENDELKEZŐ ÉPÍTÉSZMÉRNÖK...
Belső terület
190 m²
Telek terület
790 m²
Szobák
4+1

250 M Ft

Energiatahatékony!
Energiatahatékony
eladó családi ház, Budapest, XVI. kerület

eladó családi ház

Budapest, XVI. kerület, Rákosszentmihály
XVIker. RÁKOSSZENTMIHÁLYON, SZUPER CSENDES, KERTVÁROSI KÖRNYEZETBEN, 210m2-es, 1nappali + 4hálószobás, 40m2-es D-DNY-I FEKVÉSŰ TERASSZAL, LUXUS KOMFORTOS, ÖNÁLLÓ, KÖRBEJÁRHATÓ, SZÉP ÁLLAPOTÚ családi h...
Belső terület
210 m²
Telek terület
1000 m²
Szobák
5+1

259.9 M Ft

garázzsal
Garázzsal
eladó sorház, Budapest, XVI. kerület

eladó sorház

Budapest, XVI. kerület, Cinkota
Eladó...
Belső terület
90 m²
Telek terület
100 m²
Szobák
4

139.9 M Ft

Újszerű!
Újszerű
Budapest, XVI. kerület - Szentgyörgytelep
Budapest, XVI. kerület - Szentgyörgytelep
Budapest, XVI. kerület - Szentgyörgytelep
Budapest, XVI. kerület - Szentgyörgytelep
Budapest, XVI. kerület - Szentgyörgytelep
Budapest, XVI. kerület - Szentgyörgytelep
Budapest, XVI. kerület - Szentgyörgytelep