KAPCSOLATFELVÉTEL
Ingatlan jellege
téglalakás
Belső terület
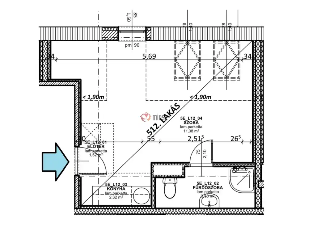
24 m²
Tájolás
délkelet
Építési állapot
újszerű
Építési mód
tégla
Szobák száma
1 szoba
Kert
(közös kerthasználat)
Erkély
1 m²
Emelet
5.
Az ingatlan a legfelső szinten van.
Épület szintje
5.
Épült
2017
Lift
van
Ingatlan állapot
kívül: újszerű
belül: újszerű
Szigetelés
10 cm
Ablak szerkezete
2 rétegű thermoplan
Fűtés
központi fűtés
Komfort
összkomfort
Parkolás
van teremgarázs
Kilátás
utcára
Energetika
B 2024:
Budapest, IX. kerület, Telepy
Irányár
(1.73 M Ft/㎡)
Szobák
Emelet
Terület
Vannak még 1 SZOBÁS,
- 24 m2 + 6 m2 erélyes,
- 27 m2 + 6 m2 erkélyes, és
- tetőtéri (nettó 21-23 m2, bruttó 26-29m2) erkély nélküli lakások.
(A legkedvezőbb árú lakás, nettó 21 m2-es, bruttó 27 m2-es a tetőtérben és az ára 41,5 M Ft.)
...és vannak még 1+1 SZOBÁS
- 36-40 m2-es erkély nélküli, és
- 42-43 m2 + 3 m2 erkéllyel rendelkező lakások.
A lakások m2 árai különbözőek és hitelre is megvásárolhatóak.
Fizikailag 8 éve épült a ház.
...egyébként bérbeadási céllal, és 2025 elejéig bérbe is volt adva minden egyes lakás. Eddig egy helyrajzi számon volt az egész épület, de most kaptak saját helyrajzi számot a lakások és ezért minősülnek jogilag új építésűnek. ...és így az ár 5% áfát tartalmaz.
Ráadásul AZ ÖN ÍZLÉSE SZERINT, frissen FELÚJÍTVA vásárolhatóak meg ezek az ingatlanok.
(Azért kerülnek felújításra, mert eddig nem voltak lakásonként mérőórák, és pl. az új vízórák miatt a fürdőszobákat mindenképp "szét kell verni" és ugyanolyan csempét mát nem lehet venni...)
Az összes burkolat, az ajtók és a szaniterek is (zuhanykabin, mosdó, wc csésze) cserélve lesznek arra, amit ön választ, sőt megmondhatja, hová szeretné a mosógép kiállást, és hová szeretne konnektorokat, stb...
AZ ÁR A FRISSEN FELÚJÍTOTT INGATLANRA ÉRTENDŐ.
A műszaki leírás tartalmazza, hogy milyen összegig van benne a felújítás az árban.
Pl. a laminált padló 6.500 Ft/m2, a fürdőszobai padló és falburkolat 10.000 Ft/m2 árig, stb.
A felújításhoz 1-2 hónapra szükség van. Azt követőn egyből költözhet.
Van egy nagy méretű BELSŐ UDVAR is, amit közösen használhatnak a lakók. Így ha ön olyan lakást vesz, aminek nincs erkélye, akkor is ki tud menni a szabad levegőre anélkül, hogy az utcára ki kellene lépnie. Ráadásul a 4. emeleten még egy közös erkély is helyet kapott. Azoknak a dohányzó embereknek, akik erkély nélküli lakást vesznek, ez biztosan nagy segítség. Majdnem olyan mintha saját erkélye lenne.
A lakások NAGYON VILÁGOSAK, mivel nem egy szűk kis sötét utcára néznek, hanem tágas térre, a Telepy utca és a Haller utca találkozásánál lévő kis parkosított részre.
A FŰTÉS HÁZKÖZPONTI, radiátorokon keresztül ad meleget, és a vízmelegítést is a központi kazán végzi.
Légkondicionáló nincs.
Konyhabútor nincs benne az árban.
A közös költség 600 Ft/m2.
A házban a teremgarázsban kocsibeállók és a felső emeleteken kis tárolók is eladók.
MINTALAKÁSKÉNT 2 DB FELÚJÍTÁSRA KERÜLT.
Élőben meg tudom mutatni ezeket is és bármelyik lakást, ami még eladó. Ez utóbbiaknál még hozzá kell képzelni a felújítást az ön által választott burkolatokkal.
A földszinten eladó még 2 db utcafronti üvegportálos ingatlan is, ami jogilag tároló, de fizikailag üzlethelyiség/iroda/lakás kialakítású. (Végezhető benne hivatalosan kereskedelmi és szolgáltató tevékenység is.) Mindkét tároló 62 m2, és a m2 áruk nettó 945.000 Ft, bruttó 1.200.000 Ft. Azaz ezek 27% áfát tartalmaznak. Tehát nettó 58,6 M Ft, bruttó 74,4 M Ft az áruk.
A Nagyvárad téri METRÓ 5-8 perc sétára van. Ugyanígy közel vannak az orvosi egyetem, a közszolgálati egyetem a Semmelweis kórház.
Ha érdekli, akkor hívjon akár az esti órákban, vagy akár hétvégén is!
belül: újszerű
Budapest, IX. kerület, Telepy
Hitelkalkulátor

+36 30 691 0408
barsi.judit@gmail.com
KAPCSOLATFELVÉTEL
Ingatlan jellege
téglalakás
Belső terület
24 m²
Tájolás
délkelet
Építési állapot
újszerű
Építési mód
tégla
Szobák száma
1 szoba
Kert
(közös kerthasználat)
Erkély
1 m²
Emelet
5.
Az ingatlan a legfelső szinten van.
Épület szintje
5.
Épült
2017
Lift
van
Ingatlan állapot
kívül: újszerű
belül: újszerű
Szigetelés
10 cm
Ablak szerkezete
2 rétegű thermoplan
Fűtés
központi fűtés
Komfort
összkomfort
Parkolás
van teremgarázs
Kilátás
utcára
Energetika
B 2024: