KAPCSOLATFELVÉTEL
Ingatlan jellege
családi ház
Belső terület
92 m²
Telek terület
535 m²
Tájolás
délkelet, délnyugat
Építési állapot
újszerű
Építési mód
tégla
Szobák száma
3+1 félszoba
Épület szintje
földszint + tetőteres.
Épült
2021
Ingatlan állapot
kívül: újszerű
belül: újszerű
Klíma
van
Szigetelés
10 cm
Ablak szerkezete
3 rétegű thermoplan
Fűtés
elektromos kazán
Komfort
duplakomfort
Parkolás
van, nem meghatározott
Közműállapot
csatorna: nincs
gáz: nincs
villany: bekötve
víz: bekötve
Energetika
A+ 2024:
Pest megye, Érd, Visegrádi utca
Irányár
(1.07 M Ft/㎡)
Szobák
Terület
Telek terület
A ház nagyon szépen kivitelezett, és átgondoltan megtervezett.
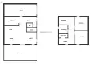
A földszinten található a nappali, konyha, étkező, kamra, és egy különálló wc, valamint a folyosóról nyíló ajtón át megközelíthető a garázs is.
A lépcsőforduló alatt kialakításra került egy tárolóhelyiség.
A felső szinten jelenleg két hálószoba, egy kádas-zuhanyzós-wc-s fürdőszoba, egy gardrób és egy háztartási helyiség található.
A gardrób/háztartási helyiségből igény esetén még egy hálószoba kialakítható.
A lakás újszerű, hasonló ízlés esetén minden módosítás nélkül beköltözhető, gyönyörű állapotú. A berendezés igény esetén külön megállapodás alapján megvásárolható.
Az M7-es autópálya percek alatt elérhető, ám közelségétől függetlenül a ház csendes, háromrétegű ablakai teljes csendet és nyugalmat biztosítanak, redőnnyel és szúnyoghálóval ellátottak.
Ahogy a képeken látszik, a kert sík, a terasz nagy, a kert ápolt és gondozott, miáltal biztosított a tökéletes pihenés. A ház és a kert körbenapozott, a terasz DNY-i fekvésű.
Az egyállásos garázst elektromos kapubehajtón keresztül lehet megközelíteni, elektromos garázskapu zárja. A telken, ill. a ház előtt további autó számára biztosított a parkolás.
A fűtést elektromos cirkó kazán (radiátoros fűtés) biztosítja, valamint az alsó és a felső szinten egy-egy hűtő-fűtő klímaberendezést szereltek fel. A melegvizet Ariston villanybojler adja. A környéken még nincs csatornahálózat, emésztőrendszer került kialakításra.
A házban kiépített riasztórendszer van.
A környék nyugodt, az utca keresztforgalomtól mentes.
Mindenképp javaslom megtekintését, a ház nagyon szép, és a jelenlegi 3%-os hitelnek is tökéletesen megfelel.
Várom hívását!
belül: újszerű
gáz: nincs
villany: bekötve
víz: bekötve
Pest megye, Érd, Visegrádi utca
Hitelkalkulátor

+36 30 612 7363
bmsz.home.ingatlan@gmail.com
KAPCSOLATFELVÉTEL
Ingatlan jellege
családi ház
Belső terület
92 m²
Telek terület
535 m²
Tájolás
délkelet, délnyugat
Építési állapot
újszerű
Építési mód
tégla
Szobák száma
3+1 félszoba
Épület szintje
földszint + tetőteres.
Épült
2021
Ingatlan állapot
kívül: újszerű
belül: újszerű
Klíma
van
Szigetelés
10 cm
Ablak szerkezete
3 rétegű thermoplan
Fűtés
elektromos kazán
Komfort
duplakomfort
Parkolás
van, nem meghatározott
Közműállapot
csatorna: nincs
gáz: nincs
villany: bekötve
víz: bekötve
Energetika
A+ 2024: